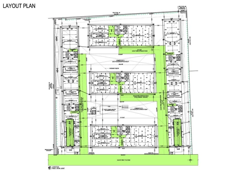
Aarambh Greens is a residential/group housing real estate project developed by Saanvi Nirman Llp, strategically located at Nr. Mahadevnagar Society,, Shivam Gas Agency Lane, Chandlodia, Ahmedabad, 382481. This RERA-registered property (Registration No: PR/GJ/AHMEDABAD/AHMEDABAD CITY/Ahmedabad Municipal Corporation/RAA15519/140725/310329). Affordable Housing Project Having Total No. Of 648 Units
The project is professionally designed by Cunal Prabodhbhai Parmar and engineered by Rajesh Purushottambhai Patel, ensuring quality construction and adherence to all regulatory standards. For more information about this property, interested buyers can contact Saanvi Nirman Llp directly at 9904402727.






































