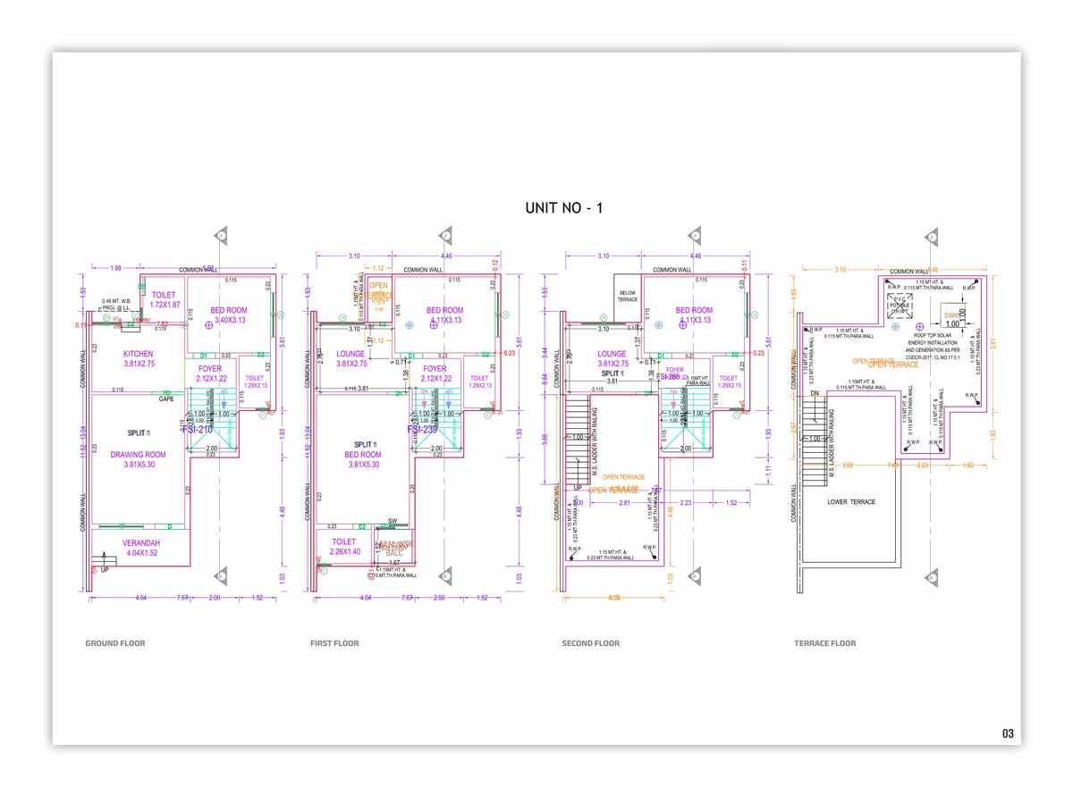
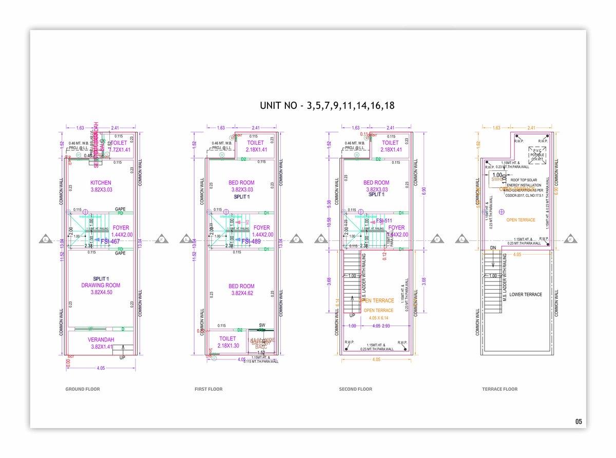
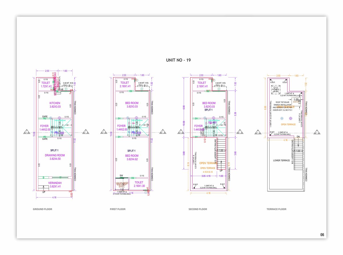
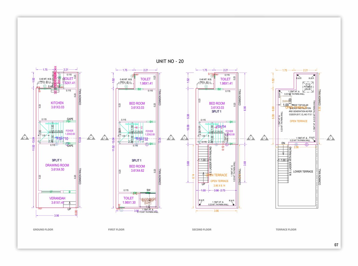
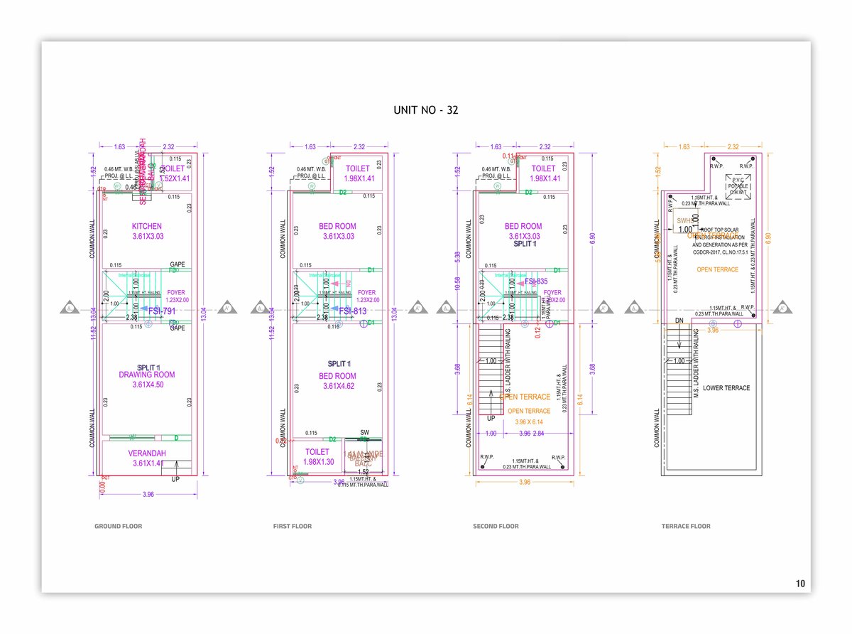
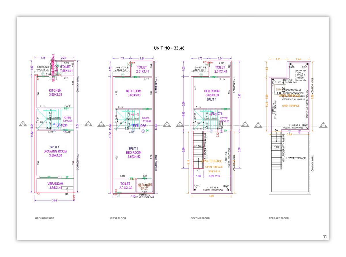
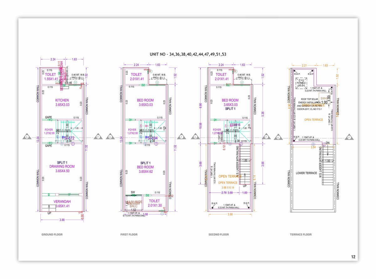
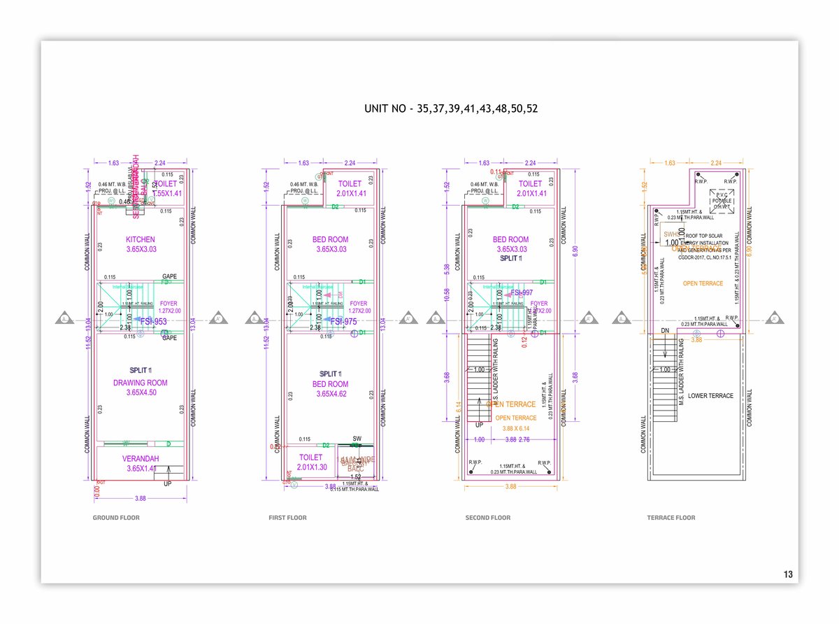
Digvi Exotica is a residential/group housing real estate project developed by Shiom Buildcon, strategically located at Opp. Gajanan Kutir, Nr Karnavati-6, B/h. Tirupati Tower, , Canal Road, New Narol, Ahmedabad, Ahmedabad, 382405. This RERA-registered property (Registration No: PR/GJ/AHMEDABAD/AHMEDABAD CITY/Ahmedabad Municipal Corporation/RAA15798/040925/300629). Row House Bungalows
The project is professionally designed by Khushilkumar Manojkumar Kanani and engineered by Ketan Kanubhai Patel, ensuring quality construction and adherence to all regulatory standards. For more information about this property, interested buyers can contact Shiom Buildcon directly at 9727000789.


















