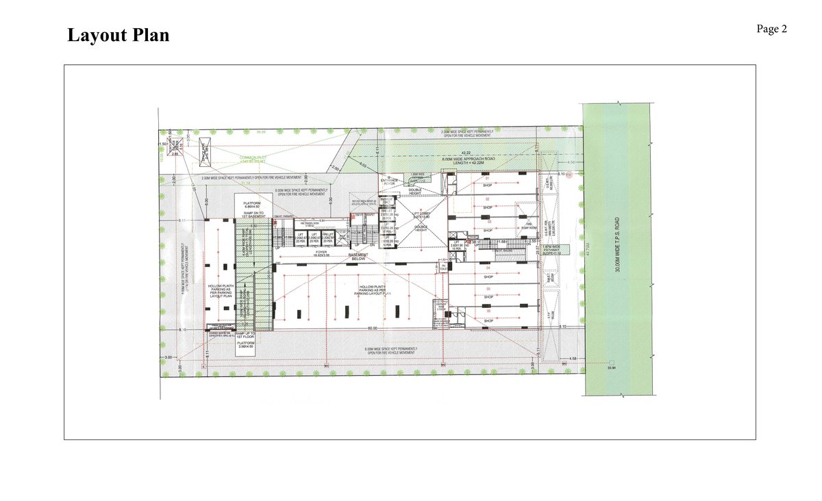
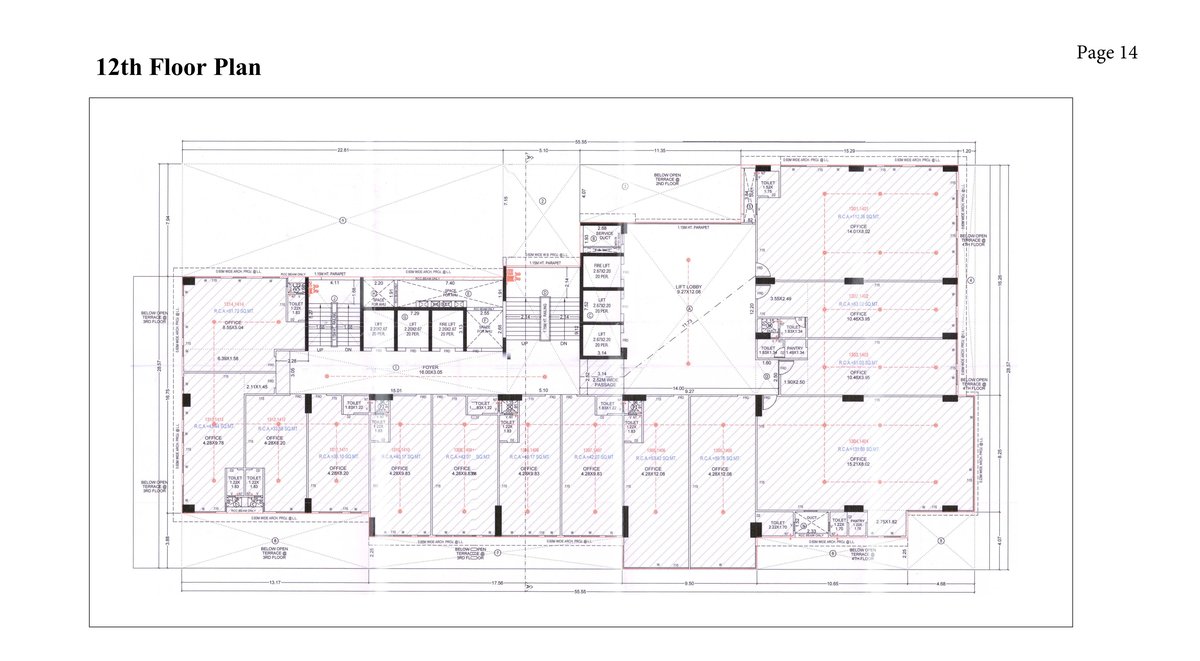
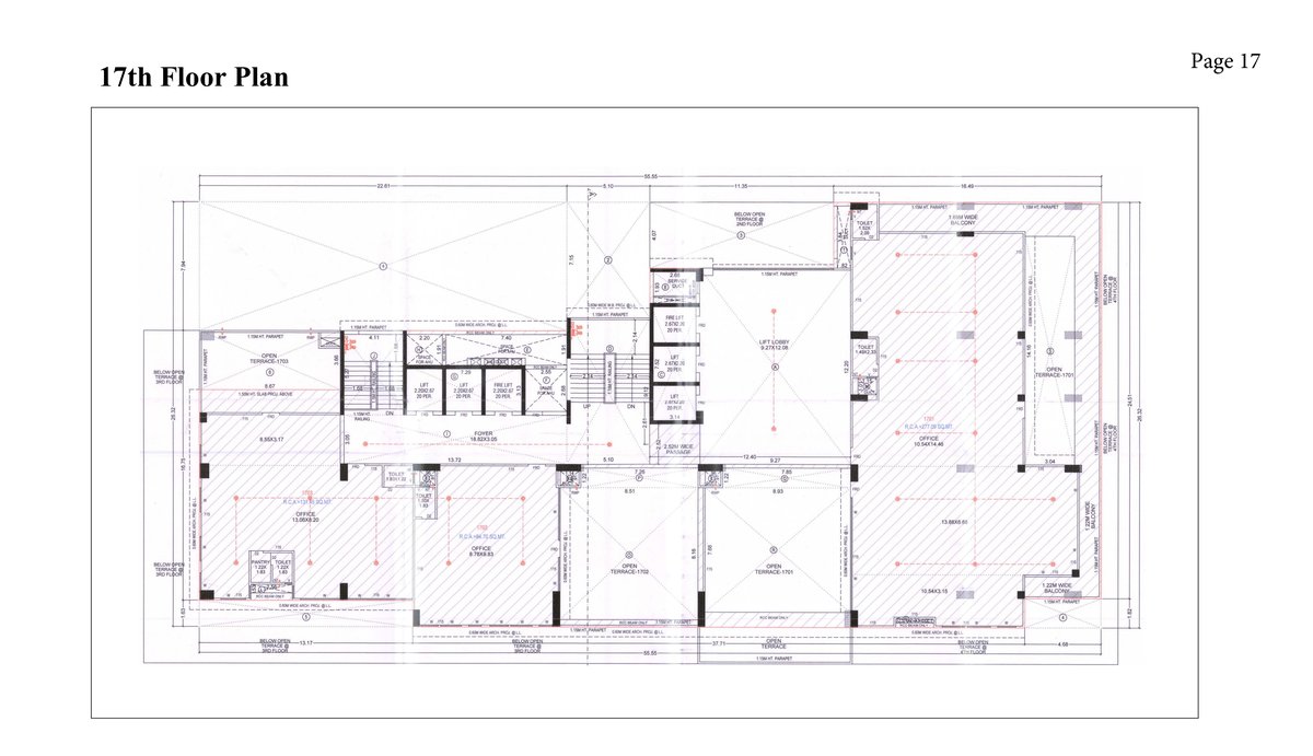
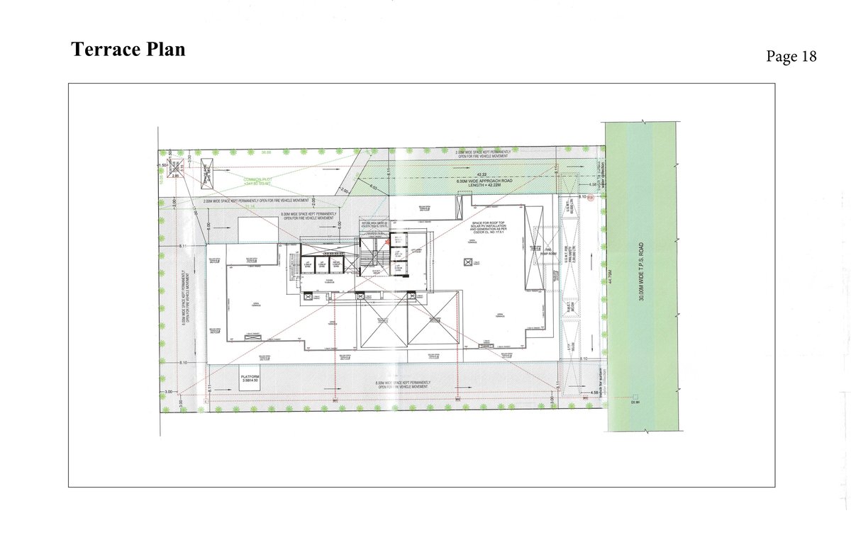
Elite The Vision is a commercial real estate project developed by Shakti Corporation, strategically located at Elite The Vision, Plot 55, Sub Plot 55/2, Beside Seventh Orchid, Opp. Krishna Height, Malabar County, Jagatpur, Ahmedabad-382470, Ahmedabad, 382470. This RERA-registered property (Registration No: PR/GJ/AHMEDABAD/AHMEDABAD CITY/Ahmedabad Municipal Corporation/CAA15805/060925/300629). Offices & Showrooms
The project is professionally designed by Vidhi Satishbhai Gajjar and engineered by Niyat Vatsal Patel, ensuring quality construction and adherence to all regulatory standards. For more information about this property, interested buyers can contact Shakti Corporation directly at 9974654287.























