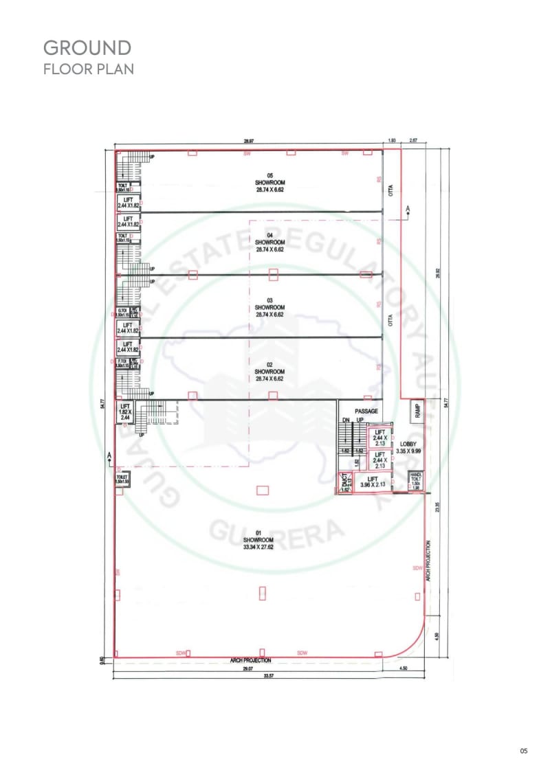
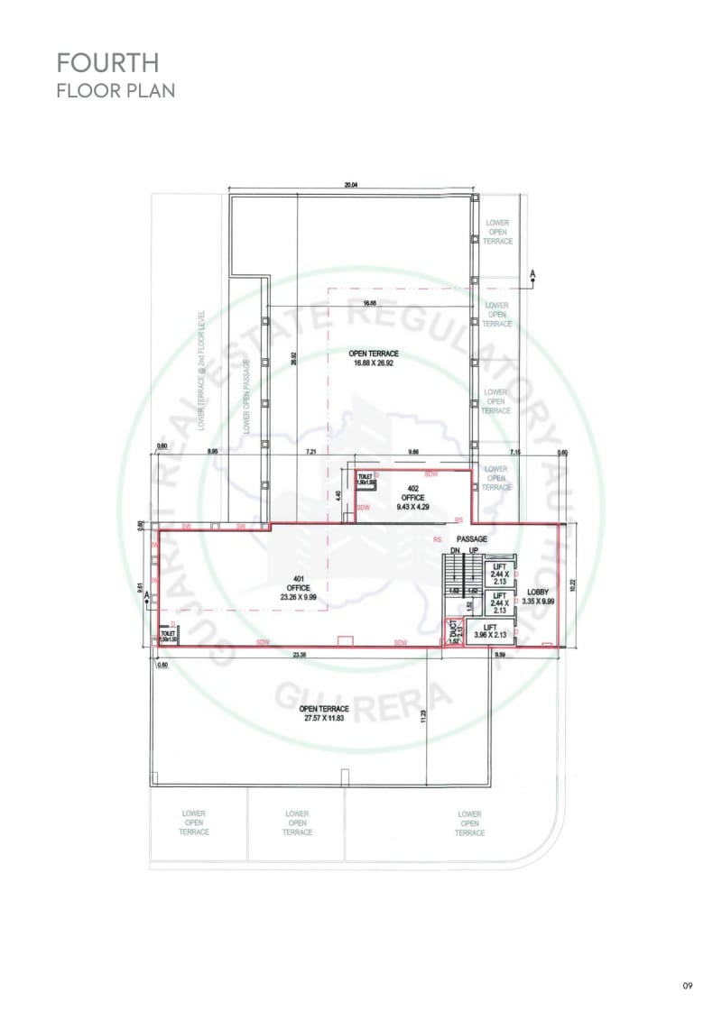
Empire Ace is a commercial real estate project developed by Empire Infra, strategically located at R.s.no.572/1/3 And 573/2,city Survey No.2282, Next To Concord Building, , R.c. Dutt Road,alkapuri, Vadodara, Vadodara, 390007. This RERA-registered property (Registration No: PR/GJ/VADODARA/VADODARA/Vadodara Municipal Corporation/CAA14523/161224/311226). Commercial Project Of 22 Units.
The project is professionally designed by Shouryakumar Jayeshchandra Patel and engineered by Aashutosh Anilchandra Desai, ensuring quality construction and adherence to all regulatory standards. For more information about this property, interested buyers can contact Empire Infra directly at 9825106830.














