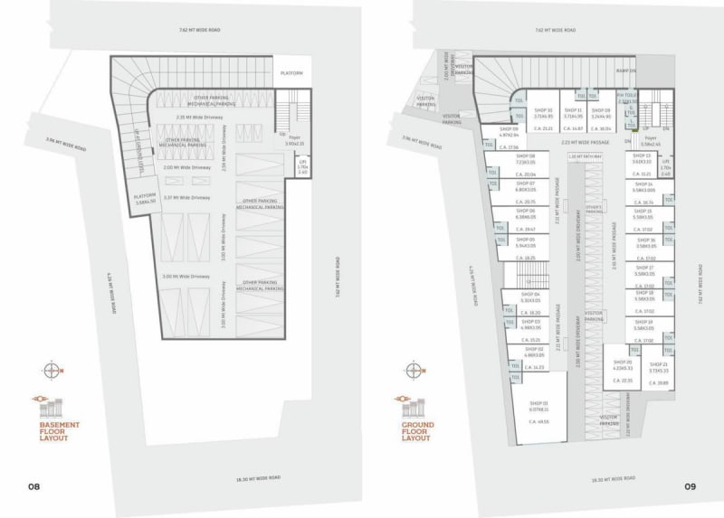
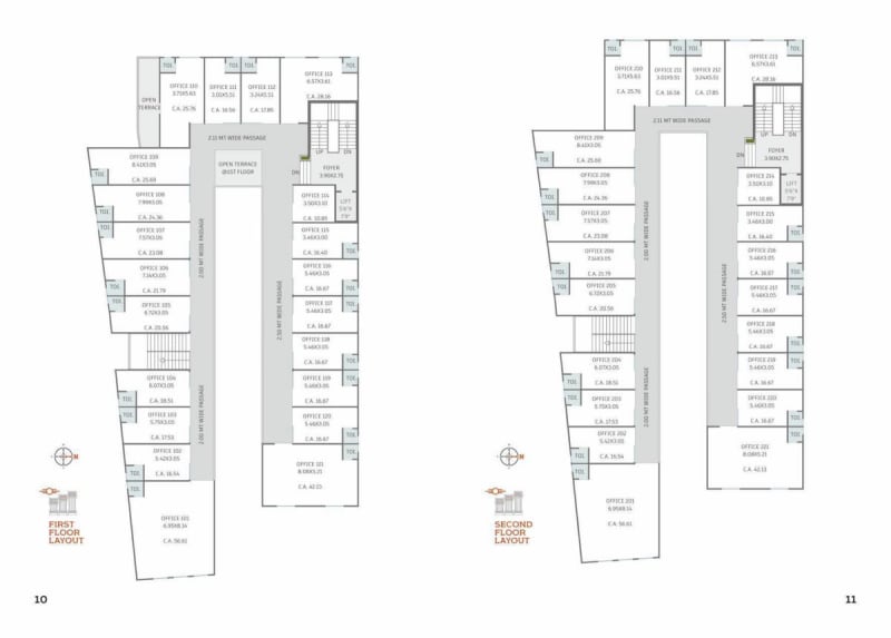
Festival Heritage Space is a commercial real estate project developed by 5r Infra Llp, strategically located at Festival Heritage Space Cs No 2021/34 Opp Gpo , Relief Road, Ahmedabad, Ahmedabad, 380001. This RERA-registered property (Registration No: PR/GJ/AHMEDABAD/AHMEDABAD CITY/Ahmedabad Municipal Corporation/CAA16408/310126/300627). Commercial Project - Shop & Officie Nr Relief Road , Ahmedabad
The project is professionally designed by Devang Babubhai Vaghela and engineered by Dipesh Mistry, ensuring quality construction and adherence to all regulatory standards. For more information about this property, interested buyers can contact 5r Infra Llp directly at 7874181097.











