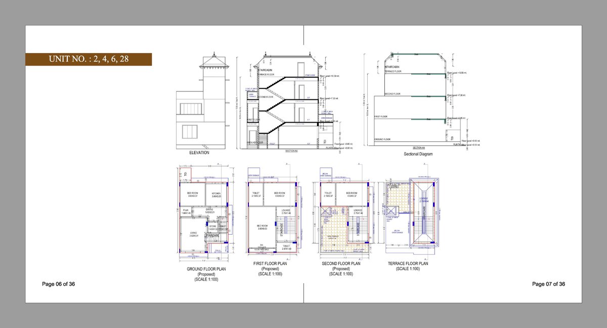
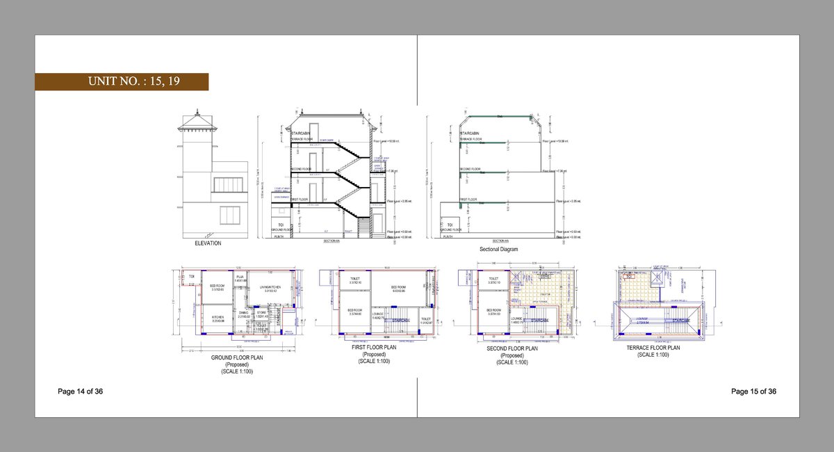
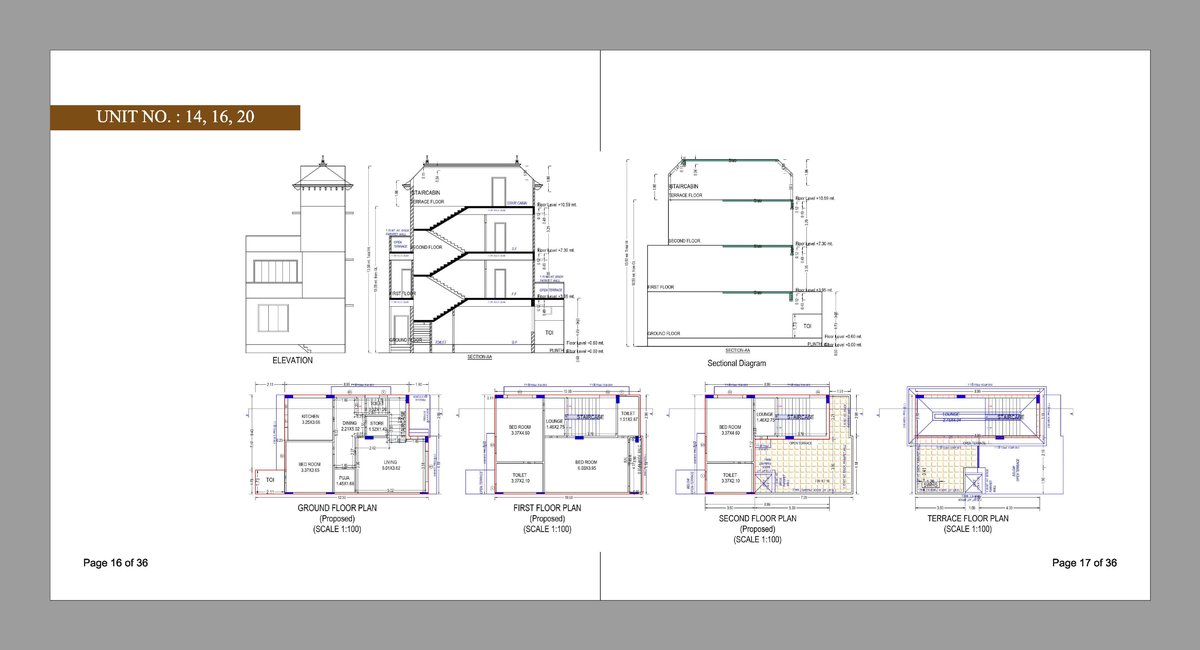
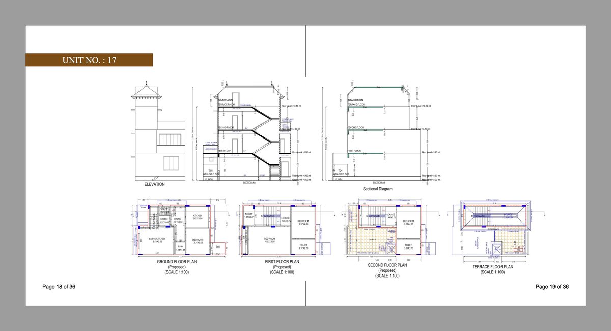
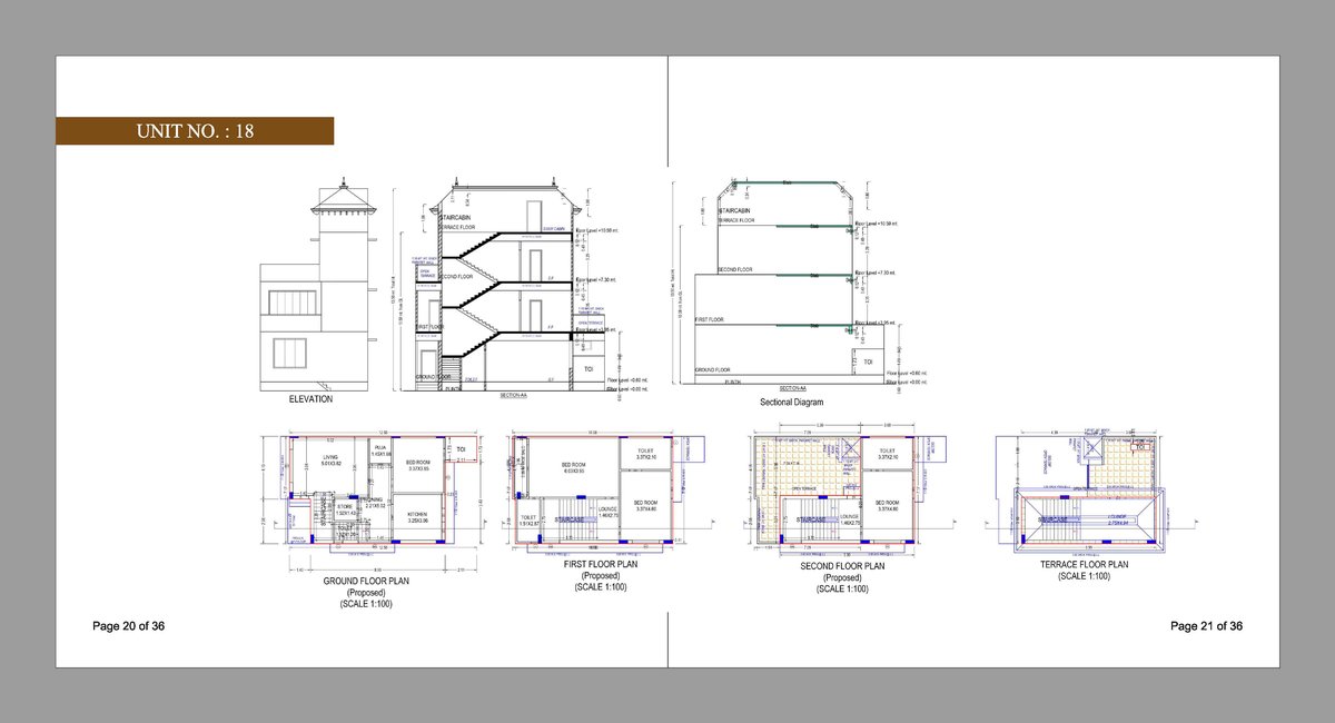
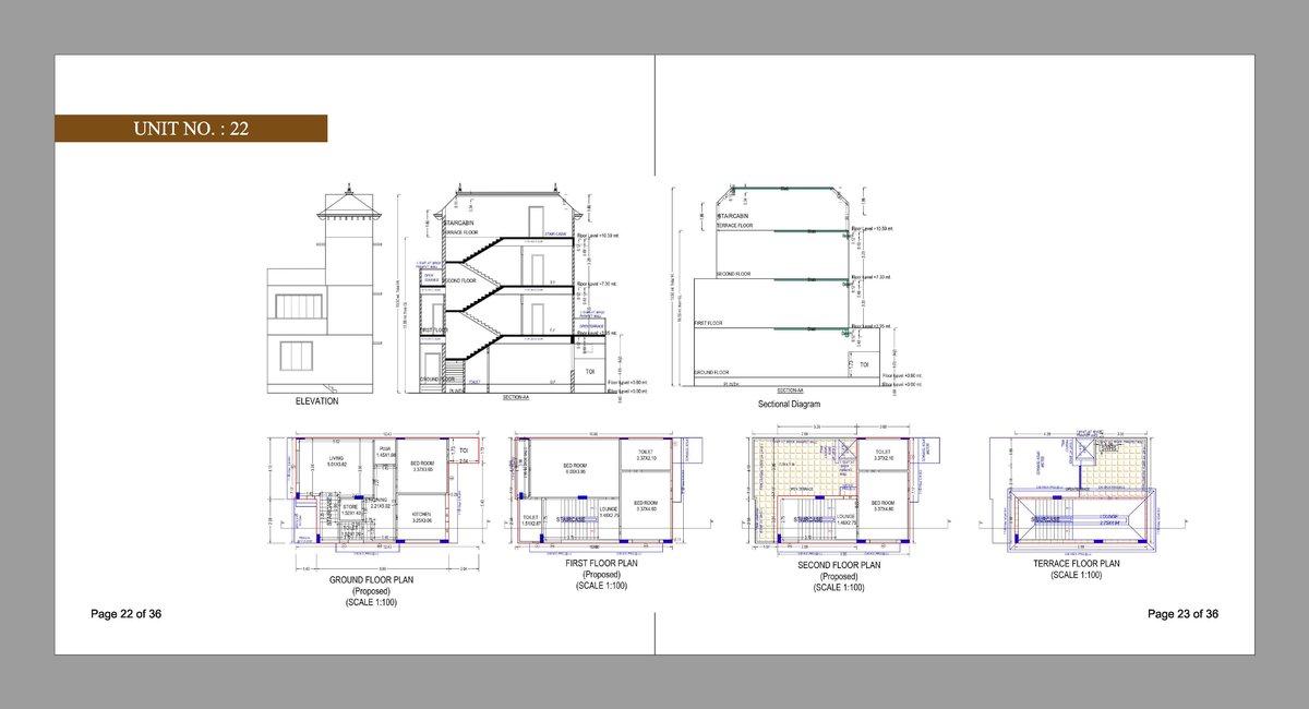
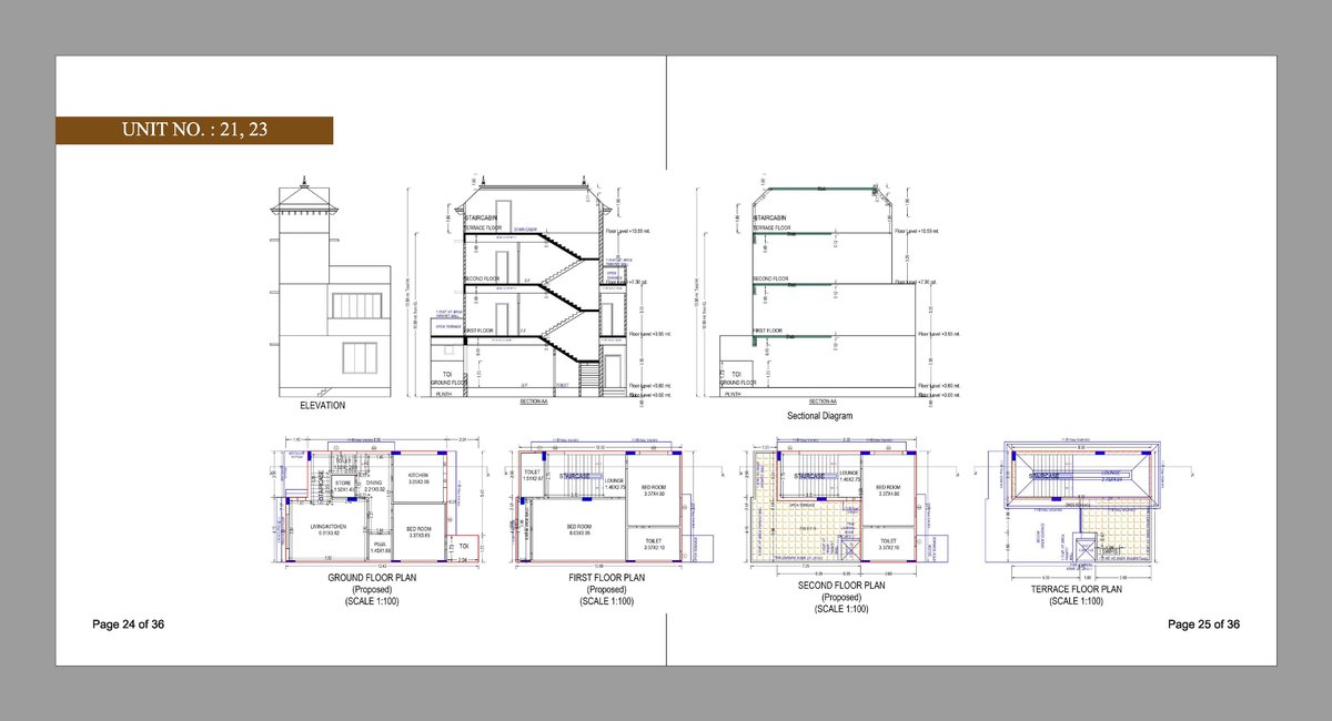
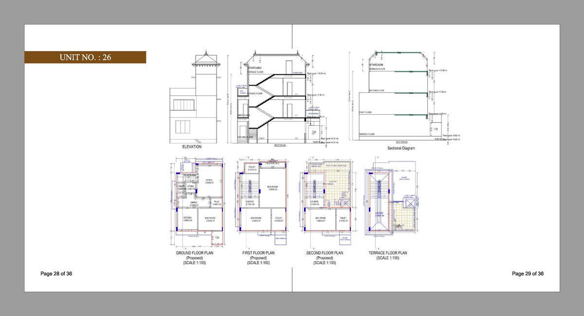
Maruti Villa is a residential/group housing real estate project developed by Rachana Realities, strategically located at Maruti Villa Near Maruti Floora 2 , Opp Shilon Greens, Ahmedabad, 382305. This RERA-registered property (Registration No: PR/GJ/AHMEDABAD/AHMEDABAD CITY/Ahmedabad Urban Development Authority/RAA15816/090925/311227). 4 Bhk Premium Villas
The project is professionally designed by Urvashi Lalitkumar Tuli and engineered by Jayesh Dineshchandra Desai, ensuring quality construction and adherence to all regulatory standards. For more information about this property, interested buyers can contact Rachana Realities directly at 9722719835.




















