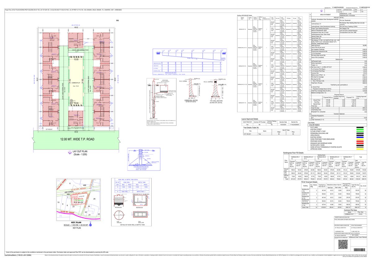
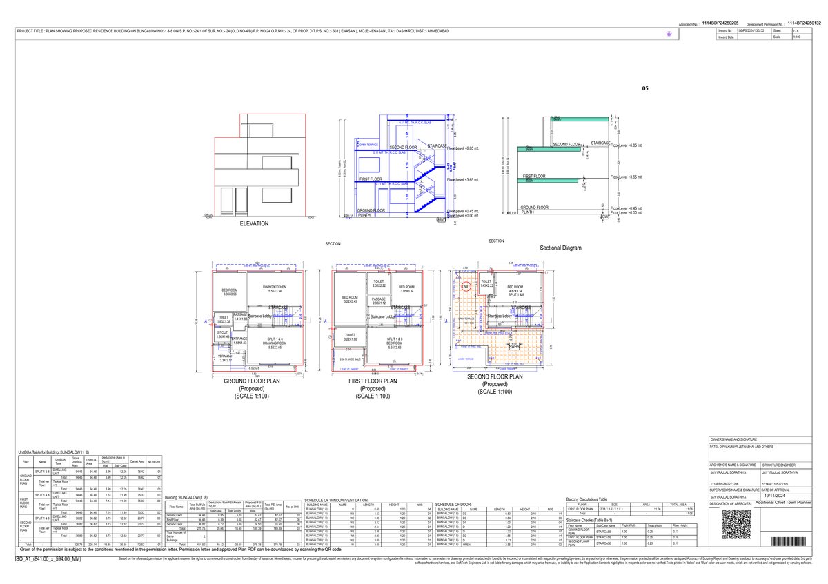
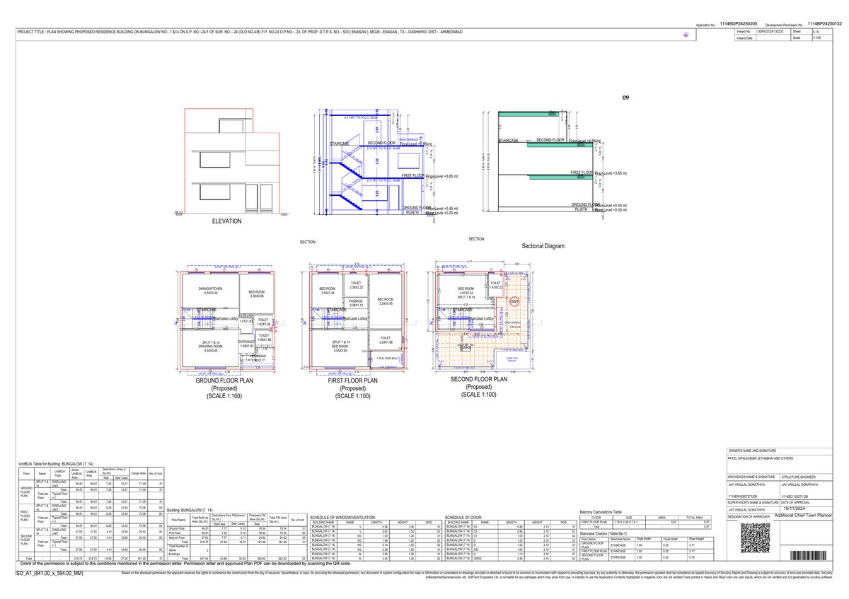
Millennium Bunglows is a residential/group housing real estate project developed by Ekta Realty, strategically located at F.p.-24, B/h Murli Party Plot, Nikol-dehgam Highway, Enasan, Ahmedabad, 382330. This RERA-registered property (Registration No: PR/GJ/AHMEDABAD/AHMEDABAD CITY/Ahmedabad Urban Development Authority/RAA15432/300625/311228). Residential Bunglows
The project is professionally designed by Amiben Rajeshbhai Patel and engineered by Chirag Rameshbhai Patel, ensuring quality construction and adherence to all regulatory standards. For more information about this property, interested buyers can contact Ekta Realty directly at 8866091444.













