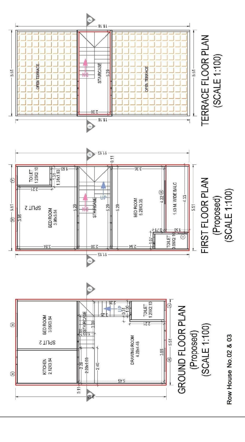
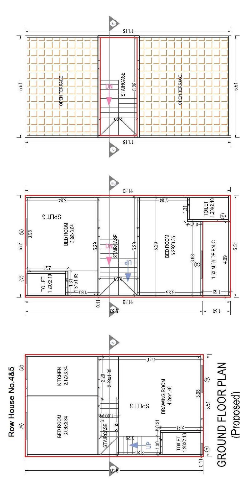
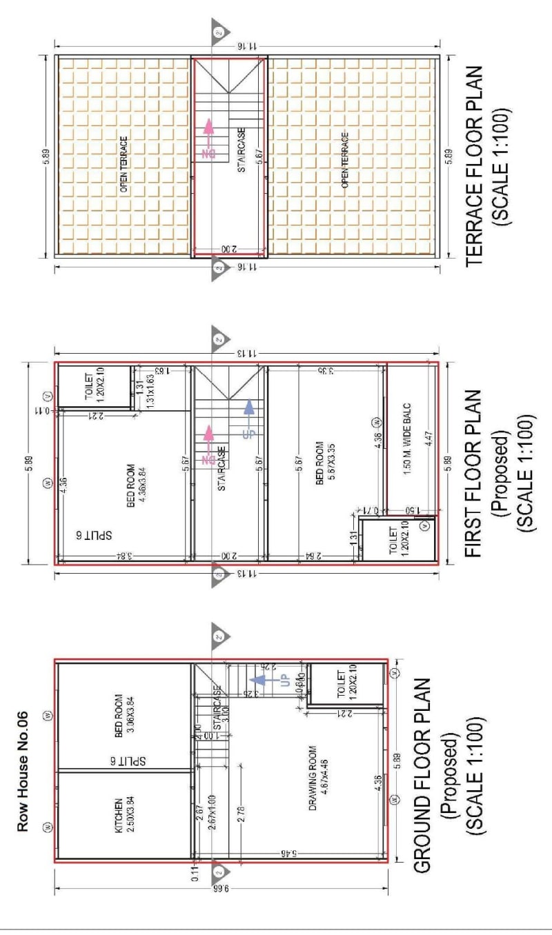
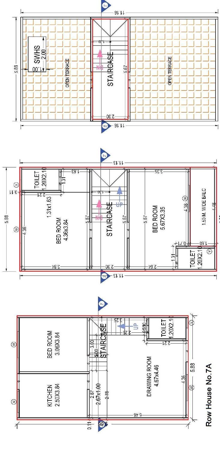
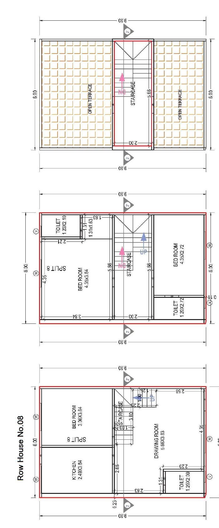
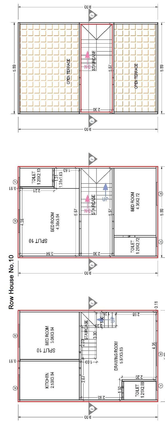
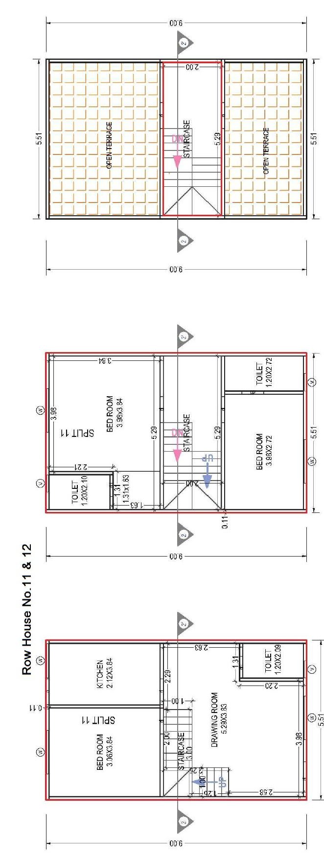
Ocean Pearl is a residential/group housing real estate project developed by Shree Aai Developers, strategically located at Ocean Pearl, Opp. Water Pump, B/h. Sahajanand Height, Pradhanmantri Avas Yojana Road, Bavla, Ahmedabad, 382220. This RERA-registered property (Registration No: PR/GJ/AHMEDABAD/BAVLA/Bavla Municipality/RAA16572/100326/311226). 21 Residential Units
The project is professionally designed by Hardikkumar Vinodbhai Maradia and engineered by Bhautik Virenbhai Shah, ensuring quality construction and adherence to all regulatory standards. For more information about this property, interested buyers can contact Shree Aai Developers directly at 9979743784.























