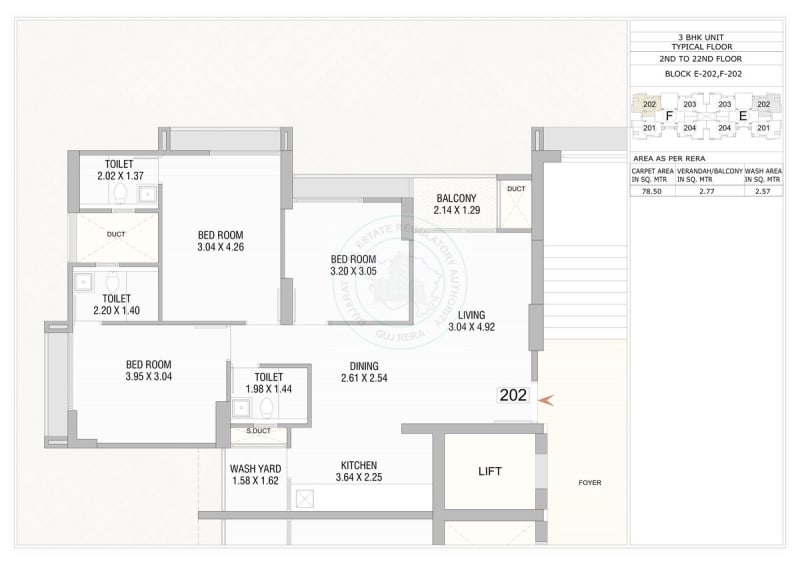
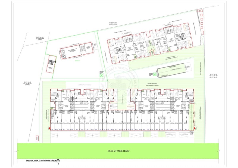
Orchid Finsbury is a mixed development real estate project developed by Goyal And Co. (Const.) Private Limited, strategically located at Sindhubhavan Ext Road, Shilaj, Ahmedabad, 380059. This RERA-registered property (Registration No: PR/GJ/AHMEDABAD/AHMEDABAD CITY/Ahmedabad Municipal Corporation/MAA14738/270125/311229). Plan Showing Proposed Work Of Affordable Housing Residence+commercial Building On F.p.no. : 109(o.p No 109) Of Draft Sanctioned T.p.s.no. : 405 [Shilaj -Ambali] Draft Sanctioned-revenue Survey No. 828,829 Of Moje - Shilaj , Taluka :- Ghatlodia, District. :- Ahmedabad.]
The project is professionally designed by Apurva Amin and engineered by Siddharth Rajendrakumar Desai, ensuring quality construction and adherence to all regulatory standards. For more information about this property, interested buyers can contact Goyal And Co. (Const.) Private Limited directly at 8980013923.











































