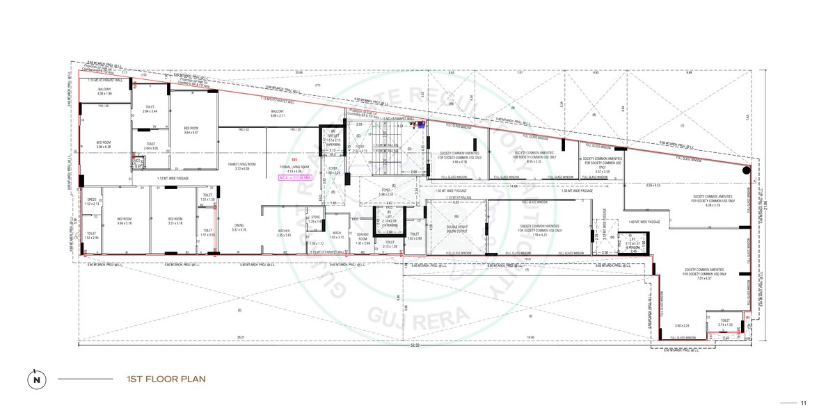
Panorama Heights is a residential/group housing real estate project developed by P K Realty Infra Llp, strategically located at Opp. River Front Garden, B/h Hyatt Regency, Ashram Road, Ahmedabad, 380014. This RERA-registered property (Registration No: PR/GJ/AHMEDABAD/AHMEDABAD CITY/Ahmedabad Municipal Corporation/RAA15456/040725/311228). This Project Is Residential Project Having 27 Flats
The project is professionally designed by Vishrut Chirag Shah and engineered by Nelson Nanubhai Macwan, ensuring quality construction and adherence to all regulatory standards. For more information about this property, interested buyers can contact P K Realty Infra Llp directly at 9909904684.


















