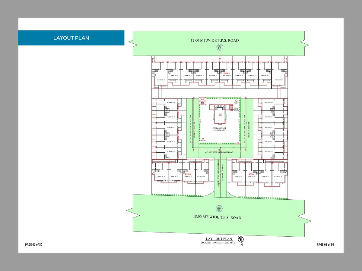
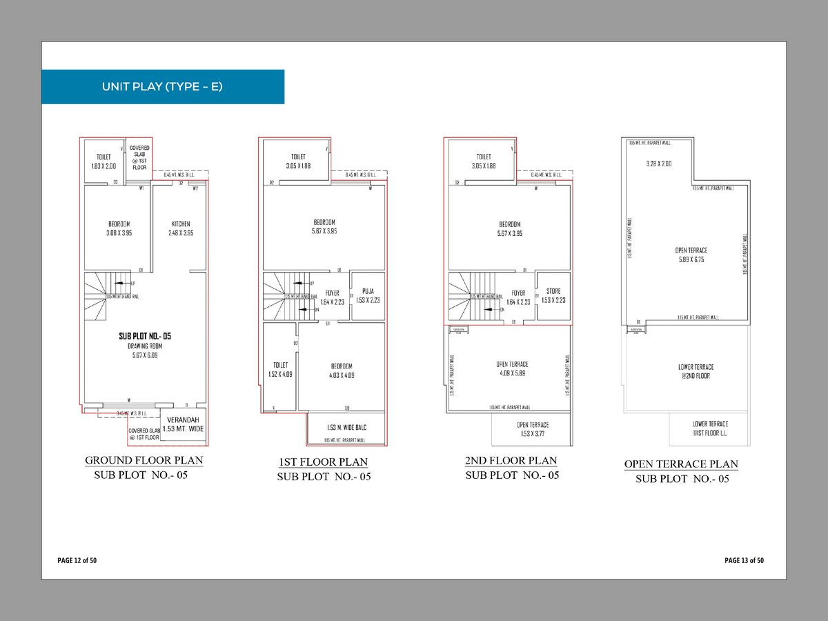
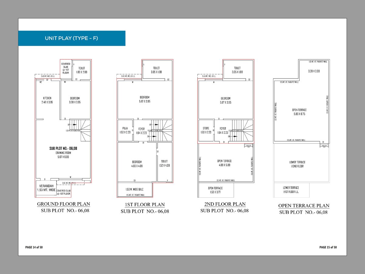
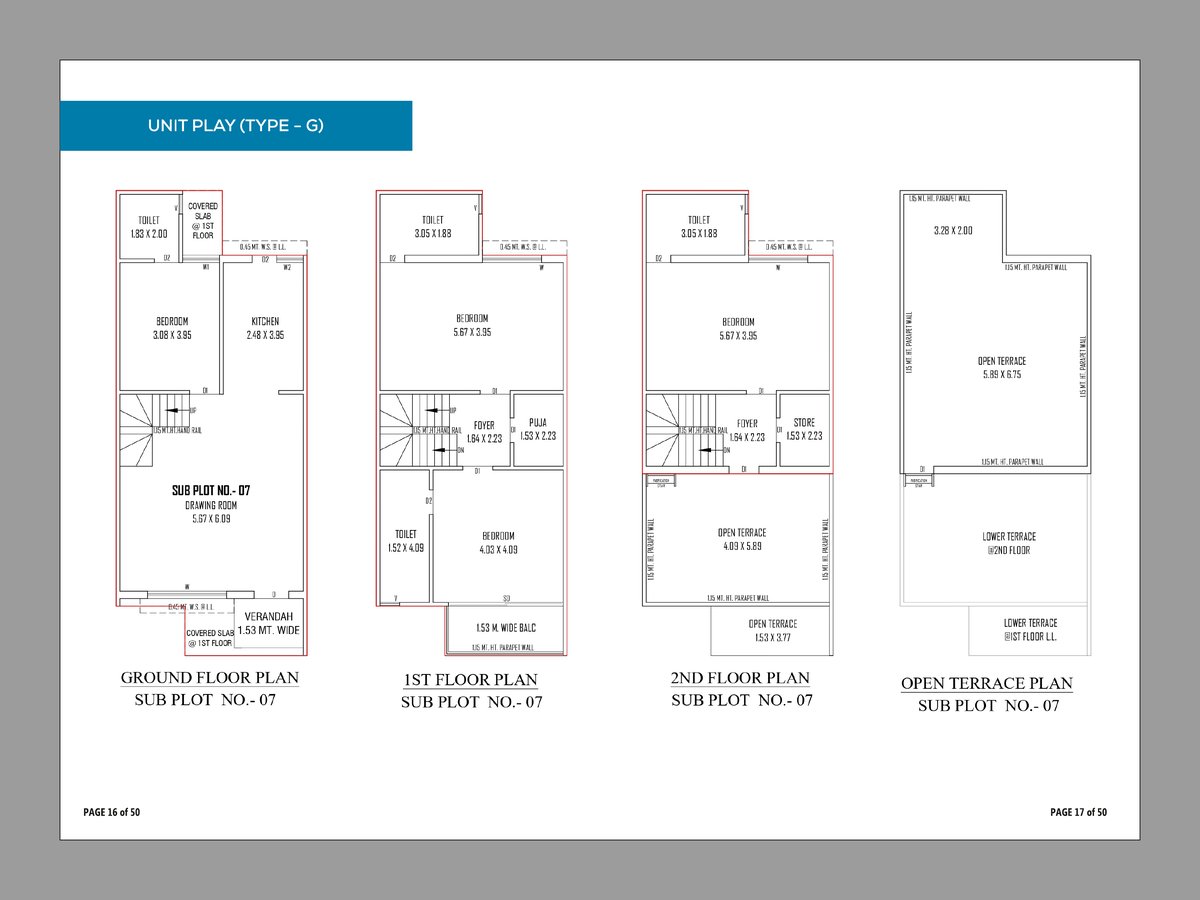
Prarthna Florence is a residential/group housing real estate project developed by Panav Infra, strategically located at Prarthna Florence, Near Prarthna Homes,, Nr. Balraj Heritage, New Vastral, Ahmedabad - 382418, Ahmedabad, 382418. This RERA-registered property (Registration No: PR/GJ/AHMEDABAD/DASKROI/Ahmedabad Urban Development Authority/RAA15264/260525/300628). 4 Bhk Premium Bungalows
The project is professionally designed by Siddharth Vitthalbhai Patel and engineered by Hardikbhai Punamchandra Upadhyay, ensuring quality construction and adherence to all regulatory standards. For more information about this property, interested buyers can contact Panav Infra directly at 8849670114.



























