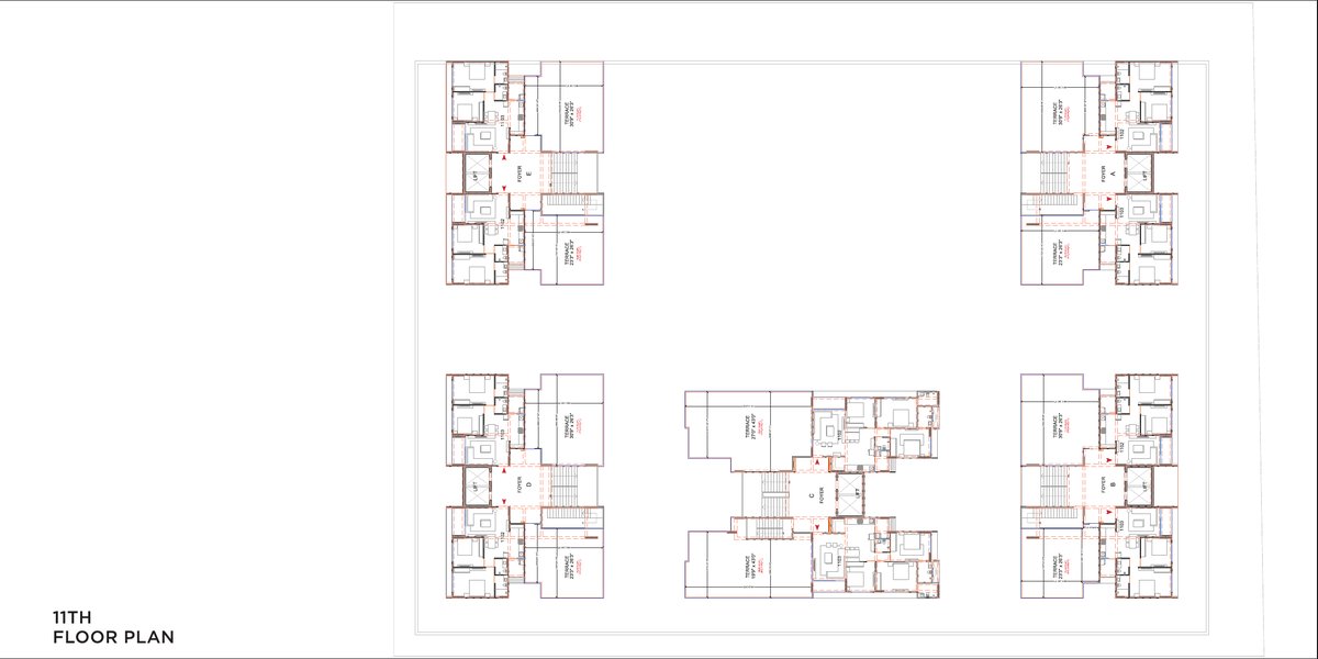
Regalia Inara is a mixed development real estate project developed by Regalia Infra, strategically located at Regalia Inara, Near Swastik Vivanta, South Bopal, Ghuma Road, Ghuma, Ahmedabad, Ahmedabad, 380058. This RERA-registered property (Registration No: PR/GJ/AHMEDABAD/DASKROI/Ahmedabad Municipal Corporation/MAA15509/140725/300629). Residential Flat & Commercial Shop Project
The project is professionally designed by Mit Jayprakashbhai Patel and engineered by Japan Bhadreshbhai Shah, ensuring quality construction and adherence to all regulatory standards. For more information about this property, interested buyers can contact Regalia Infra directly at 9512151713.















