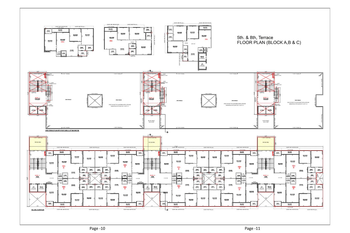
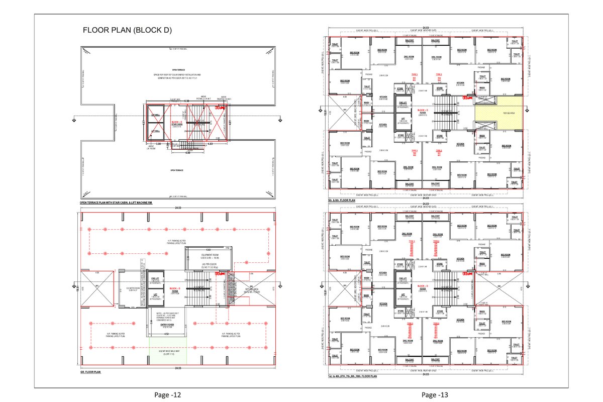
Royal Regius is a residential/group housing real estate project developed by Shree Ambica Developers, strategically located at Royal Regius Opp. Shrinath Classic Flat, Nr. Poojan Bunglow, New Shahibaugh, Nana Chiloda, Ahmedabad, 382330. This RERA-registered property (Registration No: PR/GJ/AHMEDABAD/AHMEDABAD CITY/Ahmedabad Municipal Corporation/RAA16011/181025/310330). 3 Bhk Apartment
The project is professionally designed by Sanket Kailashbhai Vora and engineered by Chiragkumar Pragjibhai Nakrani, ensuring quality construction and adherence to all regulatory standards. For more information about this property, interested buyers can contact Shree Ambica Developers directly at 9099293300.












