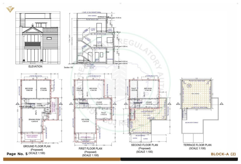
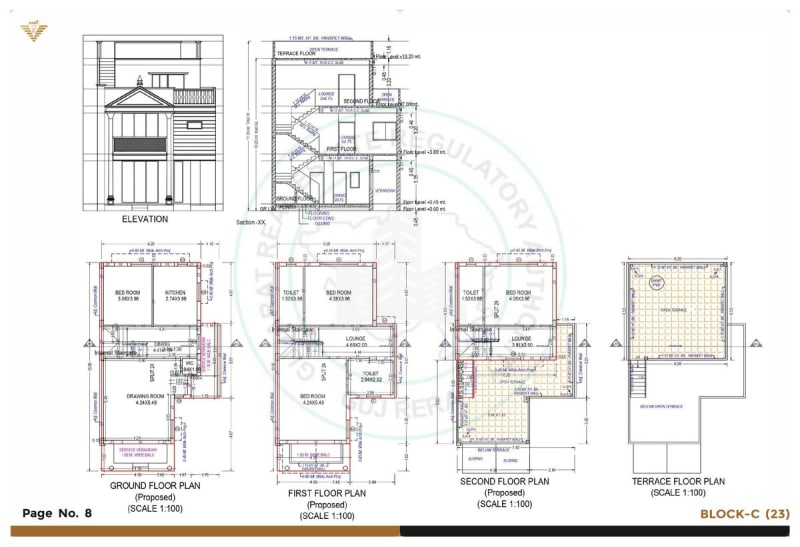
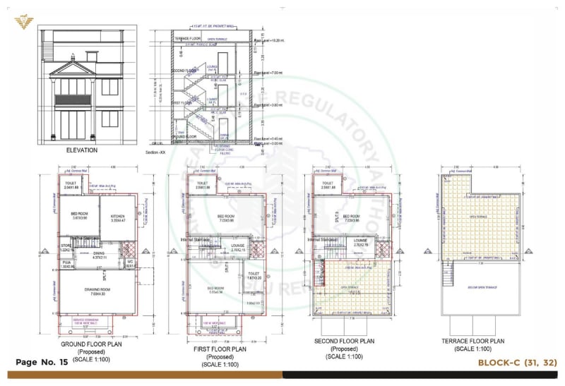
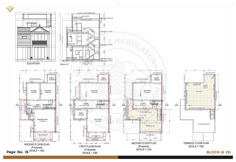
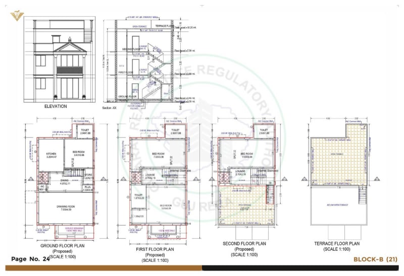
Royal Vatika is a residential/group housing real estate project developed by Shiv Shakti Developers, strategically located at B/h. Shyam Vihar-2, Nr. S.p. Ring Road, Muthiya, Ahmedabad, 382330. This RERA-registered property (Registration No: PR/GJ/AHMEDABAD/AHMEDABAD CITY/Ahmedabad Municipal Corporation/RAA14477/021224/310328). 31 Residential Bunglows
The project is professionally designed by Savan Pravinkumar Panchal and engineered by Yogeshkumar Pravinchandra Panchal, ensuring quality construction and adherence to all regulatory standards. For more information about this property, interested buyers can contact Shiv Shakti Developers directly at 9099632933.































