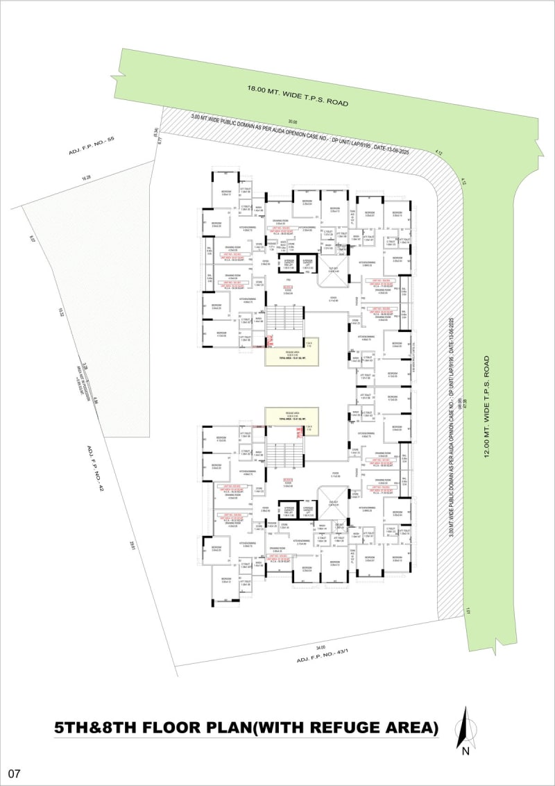
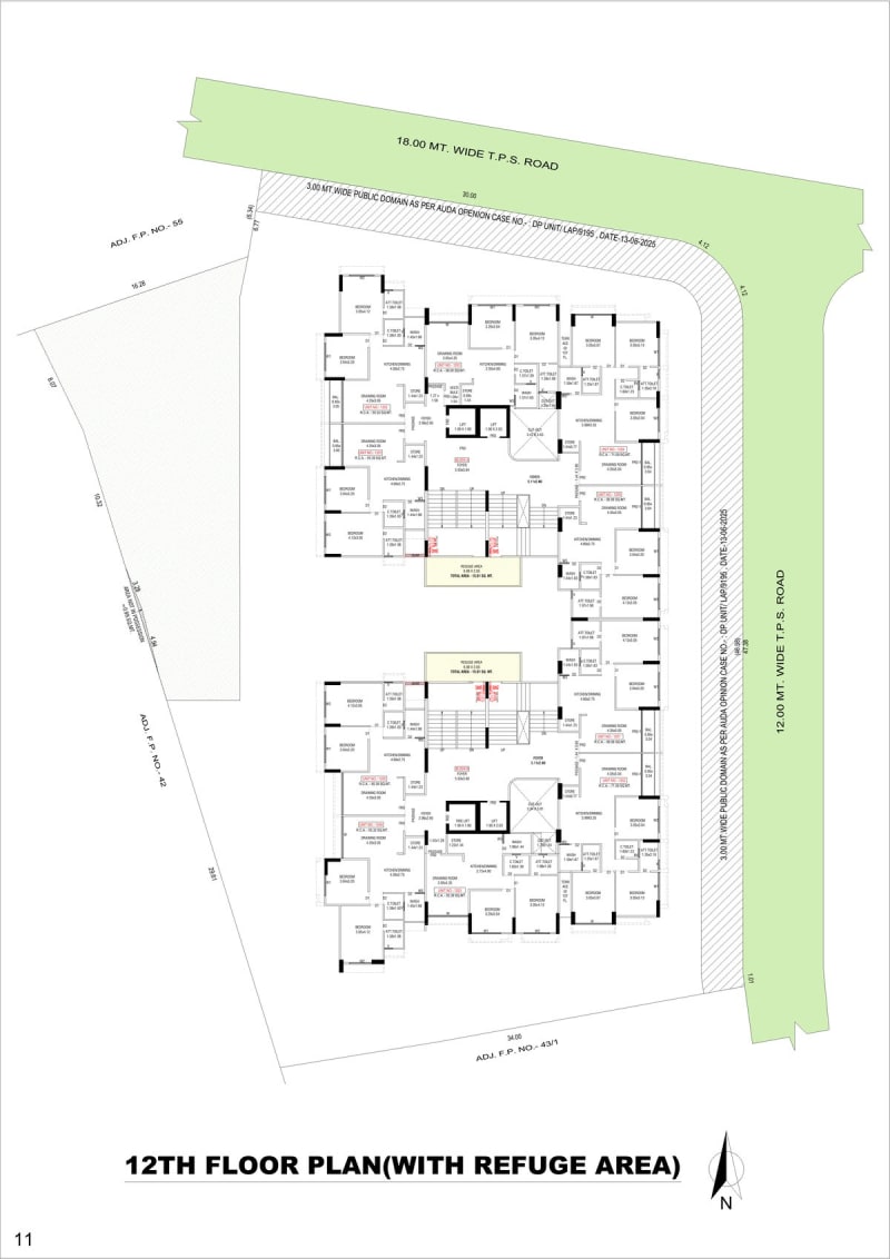
Samarthya Greens is a mixed development real estate project developed by Sattatav Buildcon Llp, strategically located at "Samarthya Greens", S. No. 283, F. P. No. 35/1, T.p.s. No. 31 (Gota),, Opp. Parmeshwar Granites, Nr. Gota Talav, Gota,, Ahmedabad, 382481. This RERA-registered property (Registration No: PR/GJ/AHMEDABAD/AHMEDABAD CITY/Ahmedabad Municipal Corporation/MAA16446/070226/311229). Multi-story Flats And Shops
The project is professionally designed by Bhumika Jitendrakumar Kapadiya and engineered by Hardikbhai Punamchandra Upadhyay, ensuring quality construction and adherence to all regulatory standards. For more information about this property, interested buyers can contact Sattatav Buildcon Llp directly at 9638559911.





















