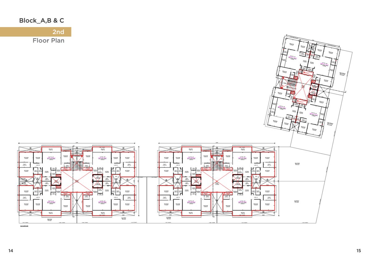
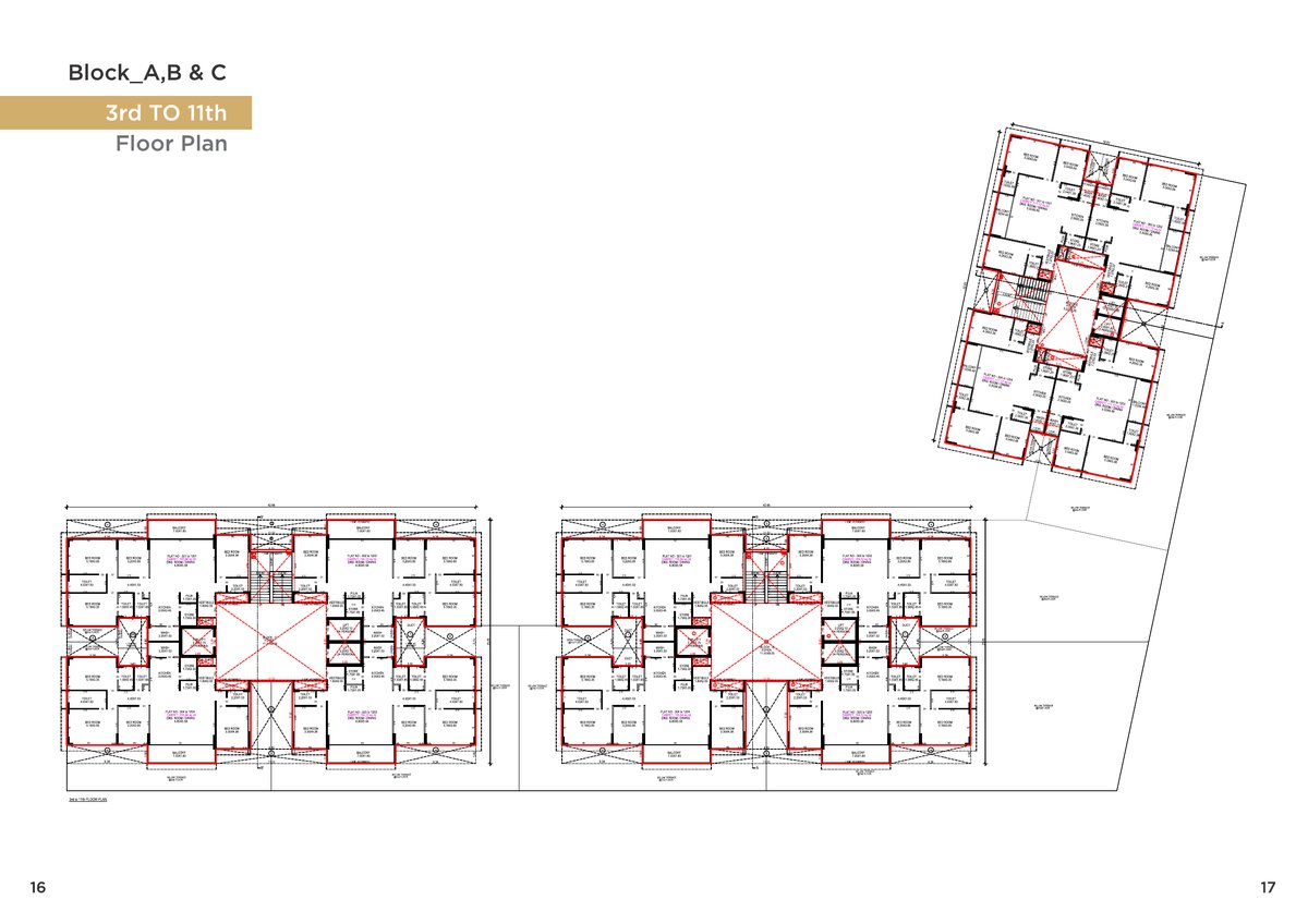
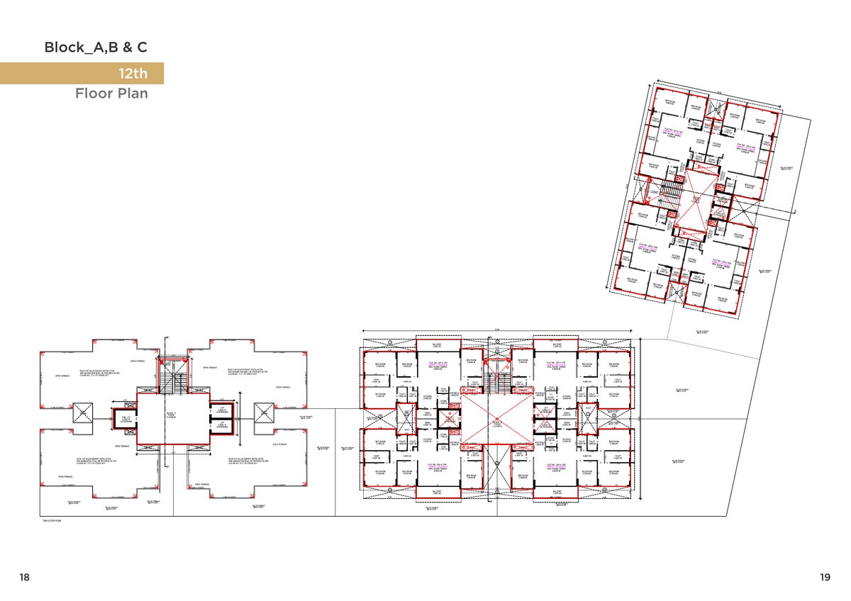
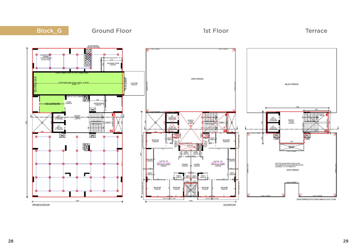
Shaligram Elevate is a mixed development real estate project developed by Shaligram Span Llp, strategically located at Shaligram Elevate, B/h Vivah Party Plot, Opp. Shypram Heights, Ognaj Circle,ognaj, Ahmedabad, 380060. This RERA-registered property (Registration No: PR/GJ/AHMEDABAD/DASKROI/Ahmedabad Municipal Corporation/MAA15554/190725/310730). It Is Mix Project Having 142 Residencial And 76 Commercial
The project is professionally designed by Mansi Sagar Shah and engineered by Viren Dilipbhai Parekh, ensuring quality construction and adherence to all regulatory standards. For more information about this property, interested buyers can contact Shaligram Span Llp directly at 9978695901.



















