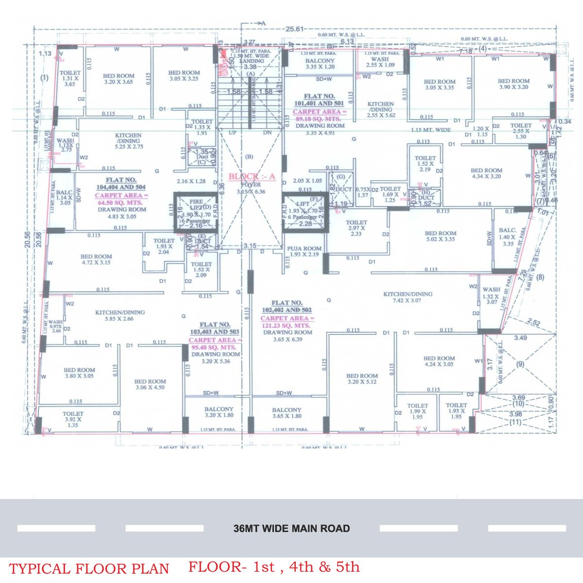
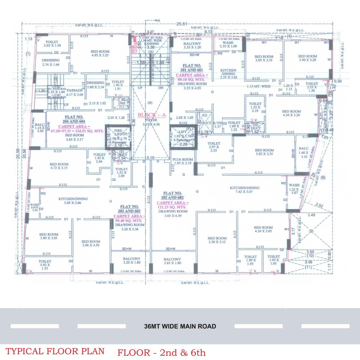
Shantam Solitaire is a residential/group housing real estate project developed by Mahavir Infra, strategically located at Rutul Flat , Near Navrang Circle, Naranpura, Ahmedabad, 380014. This RERA-registered property (Registration No: PR/GJ/AHMEDABAD/AHMEDABAD CITY/Ahmedabad Municipal Corporation/RAA15212/120525/311227). Luxurious Apartment
The project is professionally designed by Bhavin Mahendrakumar Soni and engineered by Jayesh Mansukhbhai Dharva, ensuring quality construction and adherence to all regulatory standards. For more information about this property, interested buyers can contact Mahavir Infra directly at 9824400447.


















