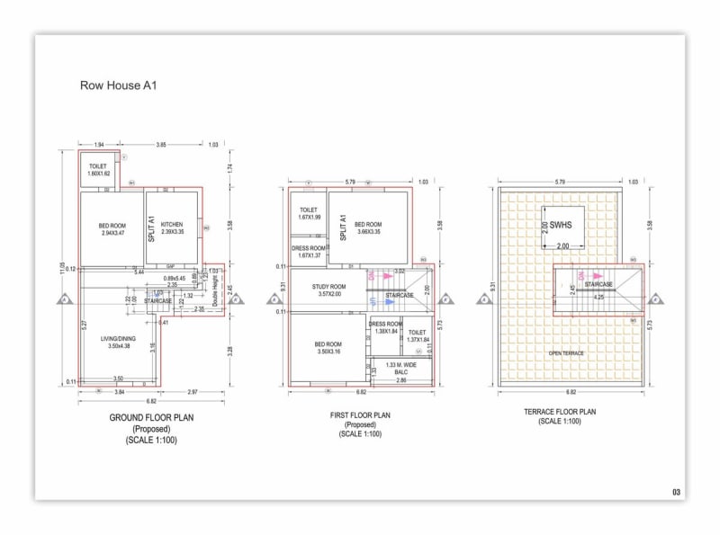
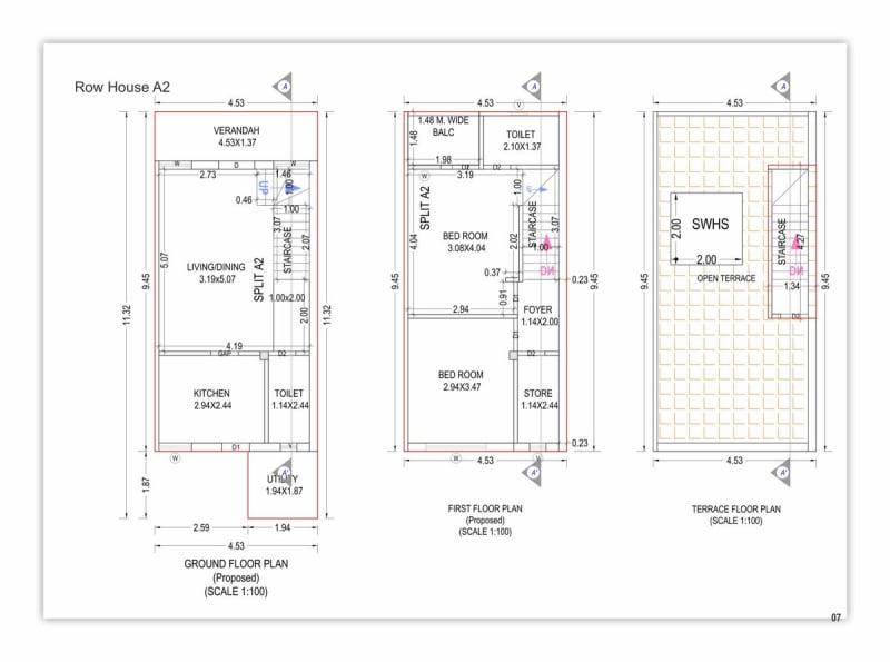
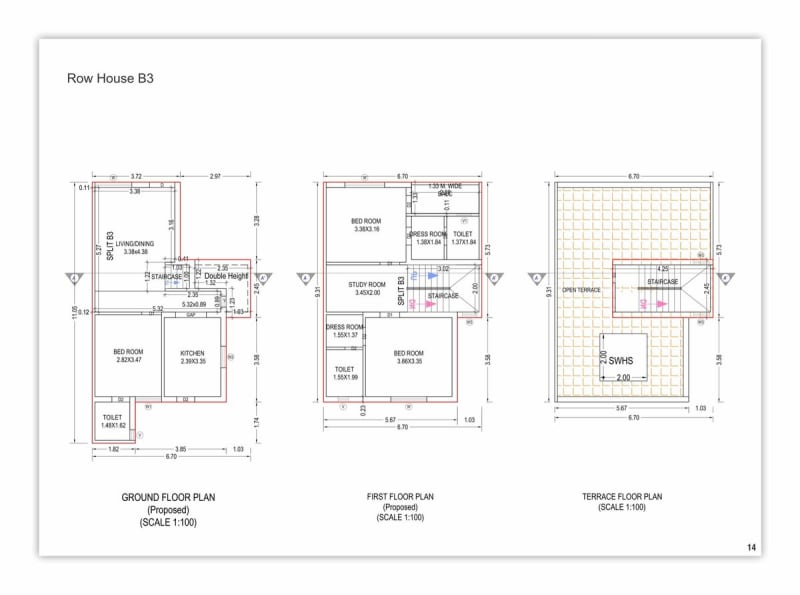
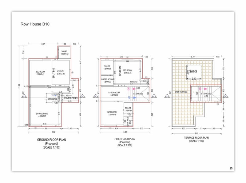
Shivaan City is a residential/group housing real estate project developed by Ivaan Infracon, strategically located at Shivaan City, Nr. Devkutir Residency, Opp. Devarsh Divine Girls School To Rajoda Road, Bavla, Ahmedabad, 382220. This RERA-registered property (Registration No: PR/GJ/AHMEDABAD/BAVLA/Bavla Municipality/RAA14510/131224/311227). 2 & 3 Bhk Row Houses & Bungalows
The project is professionally designed by Rajeev Bhanot and engineered by Bhagirath Bharatkumar Patel, ensuring quality construction and adherence to all regulatory standards. For more information about this property, interested buyers can contact Ivaan Infracon directly at 9426606256.































