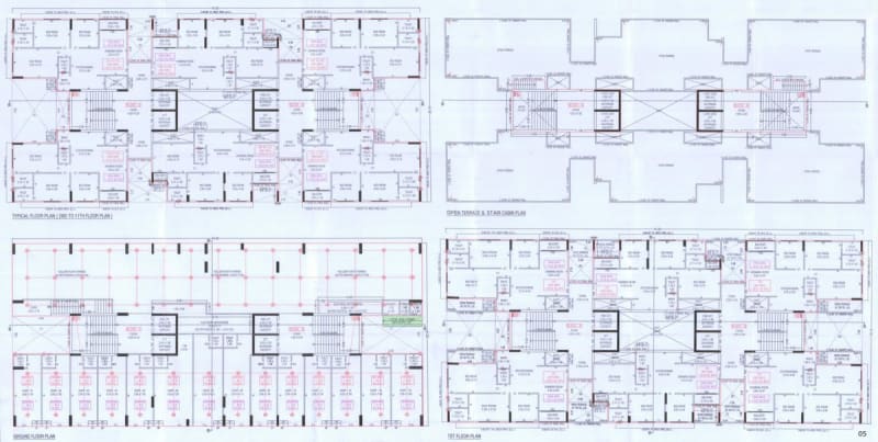
Shivana Aresta is a mixed development real estate project developed by Sk Shivana Projects Llp, strategically located at B/h Swastik Green, Safal Parisar Road, South Bopal, Ahmedabad, 380058. This RERA-registered property (Registration No: PR/GJ/AHMEDABAD/DASKROI/Ahmedabad Municipal Corporation/MAA14517/131224/310828). Residential Flats And Shops
The project is professionally designed by Amiben Rajeshbhai Patel and engineered by Jayesh Dineshchandra Desai, ensuring quality construction and adherence to all regulatory standards. For more information about this property, interested buyers can contact Sk Shivana Projects Llp directly at 9904531333.










