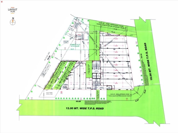
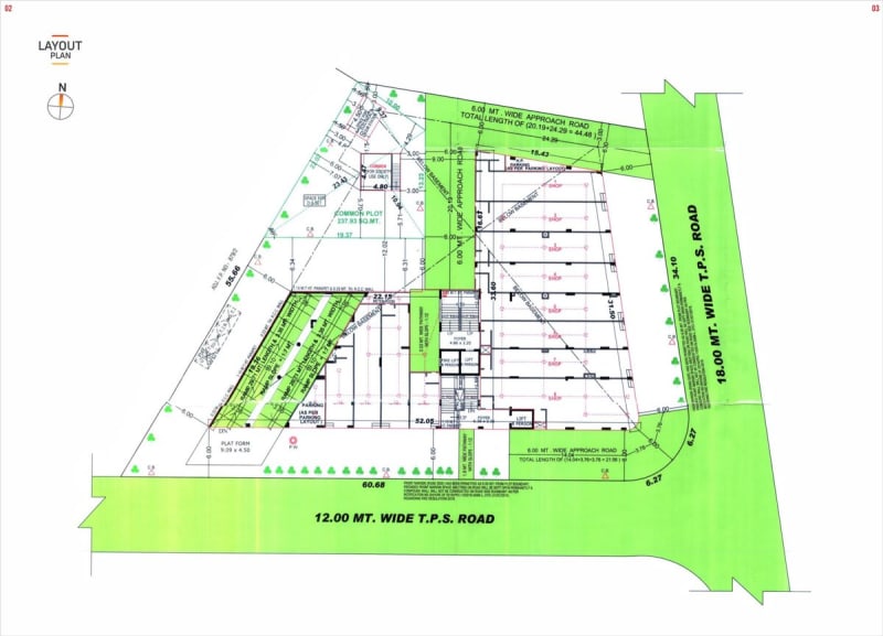
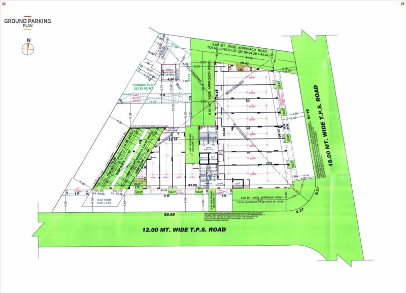
Shyam One is a mixed development real estate project developed by Maruti Developers, strategically located at Shyam One Opp. Arjun Bunglow's Saurabh High School Road, Opp.national Handloom Ni Gali, Vadaj Ranip Road, Ahmedabad, 380013. This RERA-registered property (Registration No: PR/GJ/AHMEDABAD/AHMEDABAD CITY/Ahmedabad Municipal Corporation/MAA14621/311224/150428). Mixed Project
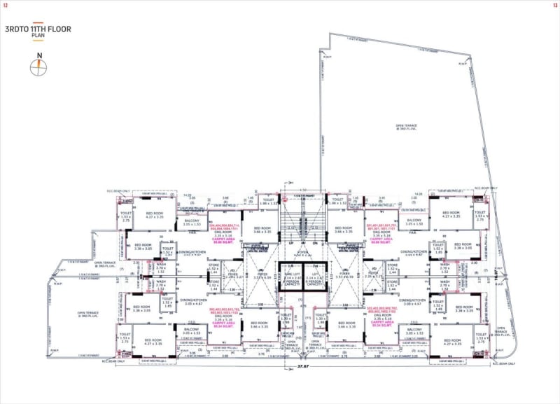
The project is professionally designed by Dipikaben Amitsinh Chavda and engineered by Harsh Rajeshbhai Sanghvi, ensuring quality construction and adherence to all regulatory standards. For more information about this property, interested buyers can contact Maruti Developers directly at 9925857322.















