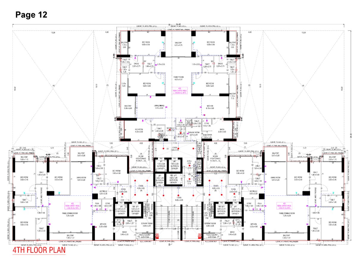
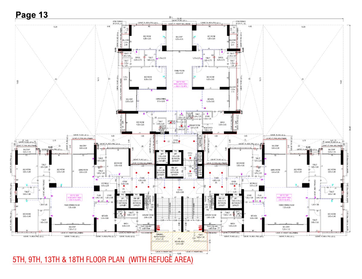
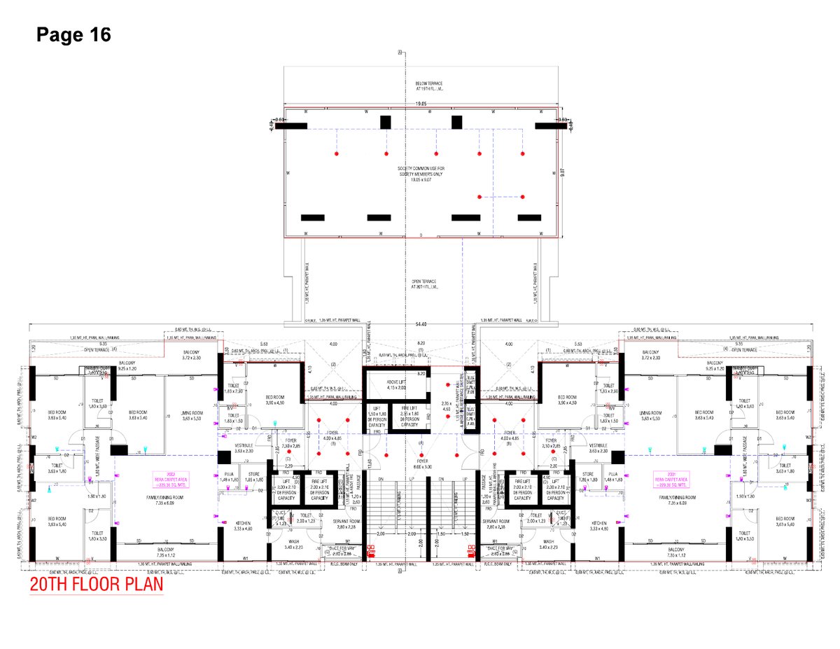
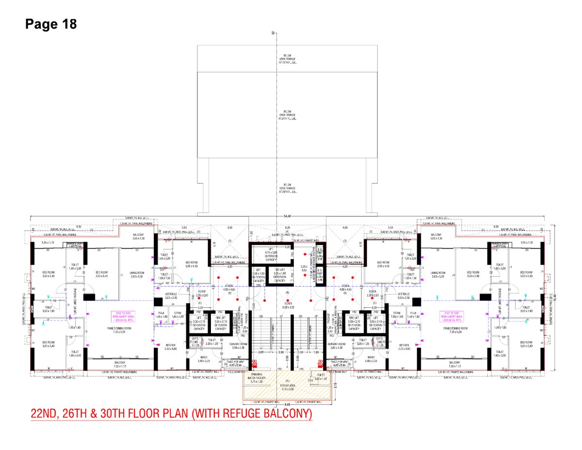
Skyzenia is a residential/group housing real estate project developed by Saraswati Structures Llp, strategically located at Skyzenia, Nr Anantara Abode, Science City To Hebatpur Road , Science Park, Hebatpur, Ahmedabad , Ahmedabad, 382455. This RERA-registered property (Registration No: PR/GJ/AHMEDABAD/Ahmedabad City/Ahmedabad Municipal Corporation/RAA15240/170525/311230). 84 Residential Units
The project is professionally designed by Prashantkumar Balvantbhai Paradava and engineered by Narendrakumar Kantibhai Patel, ensuring quality construction and adherence to all regulatory standards. For more information about this property, interested buyers can contact Saraswati Structures Llp directly at 7572921377.



































