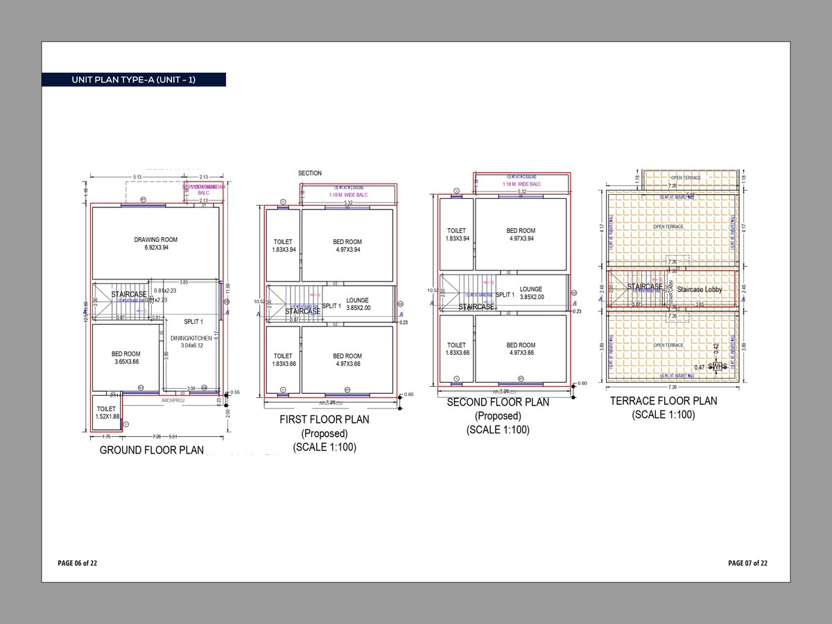
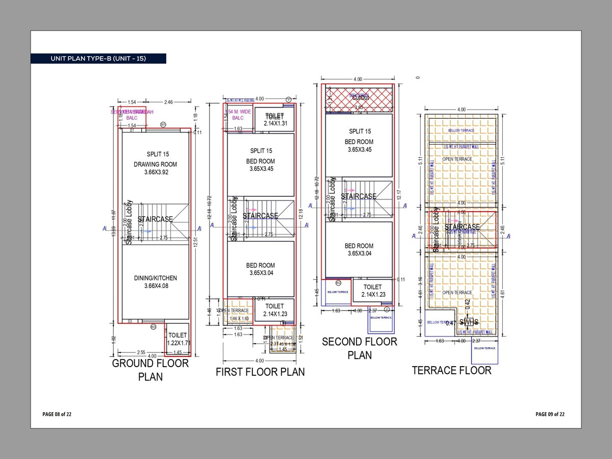
Sunrise Homes is a residential/group housing real estate project developed by Sun Infra, strategically located at Sunrise Homes ,Nr.pavitra Bunglows ,, Singarva- Odhav Road ,Ahmedabad, Ahmedabad, 382415. This RERA-registered property (Registration No: PR/GJ/AHMEDABAD/AHMEDABAD CITY/Ahmedabad Urban Development Authority/RAA15745/250825/311228). 4 Bhk Luxurious Bungalows
The project is professionally designed by Sanket Kailashbhai Vora and engineered by Chiragkumar Pragjibhai Nakrani, ensuring quality construction and adherence to all regulatory standards. For more information about this property, interested buyers can contact Sun Infra directly at 9428343938.













