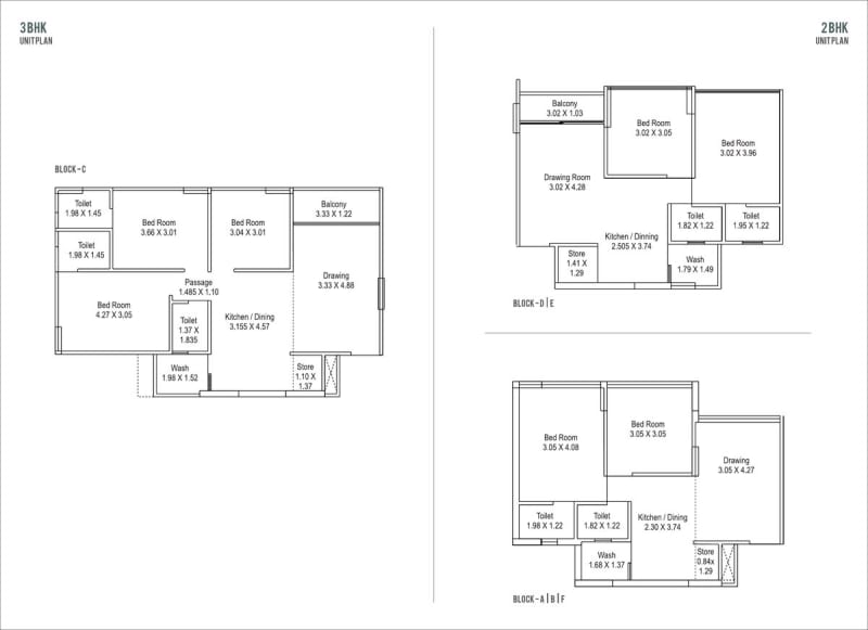
Suryansh Skyline is a mixed development real estate project developed by Sun Buildcon Gujarat Llp, strategically located at Surya Appartment Association Vibhag 1 (Ghb) , Sola Road Naranpura , Ahmedabad, 380013. This RERA-registered property (Registration No: PR/GJ/AHMEDABAD/AHMEDABAD CITY/Ahmedabad Municipal Corporation/MAA14578/231224/180929). 2bhk And 3bhk Premium Living Flats And Shops
The project is professionally designed by Jigar Jayant Shah and engineered by Margeshbhai Rameshbhai Patel, ensuring quality construction and adherence to all regulatory standards. For more information about this property, interested buyers can contact Sun Buildcon Gujarat Llp directly at 9909982220.























