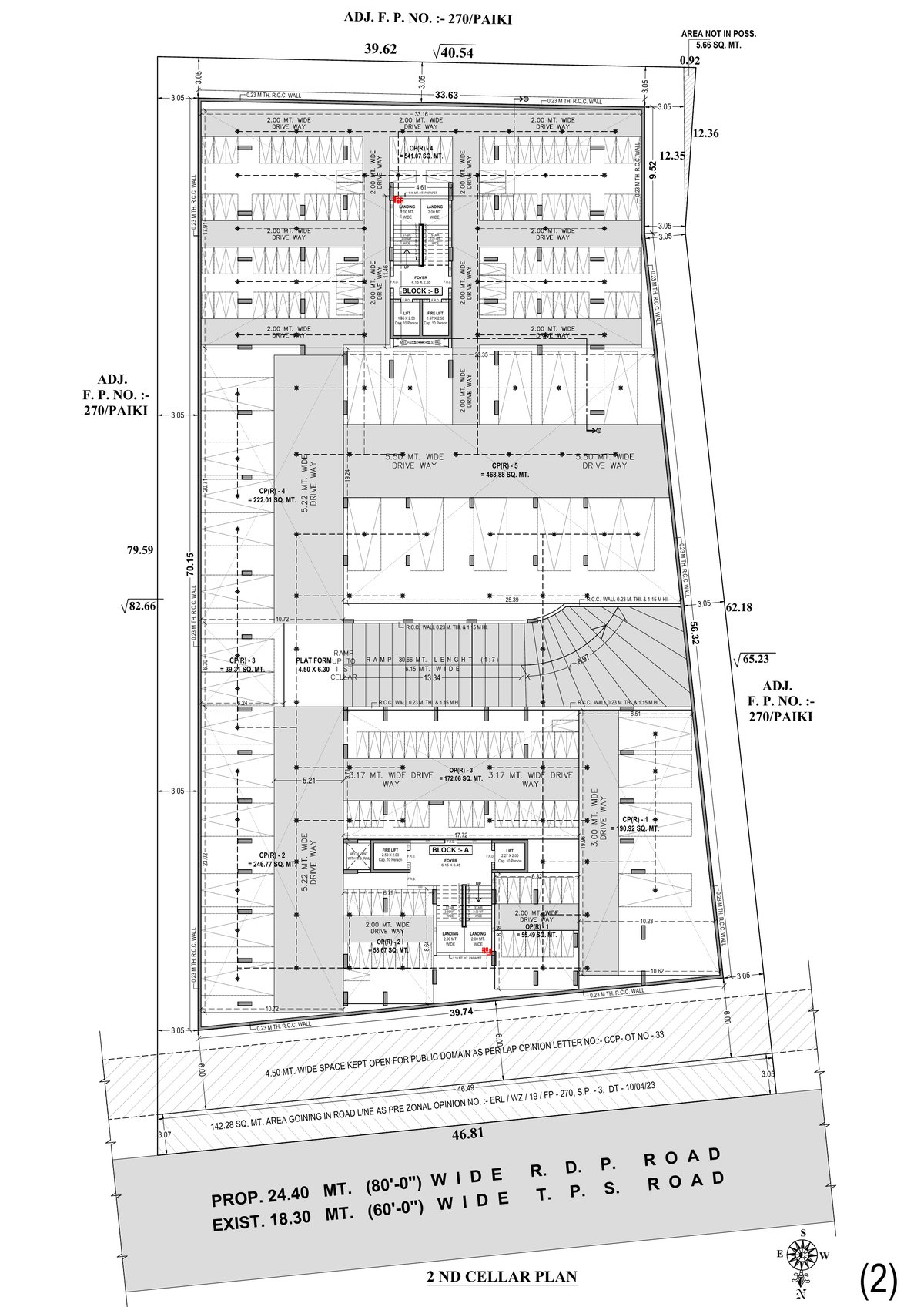
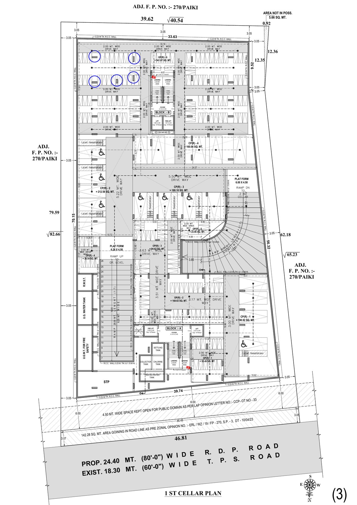
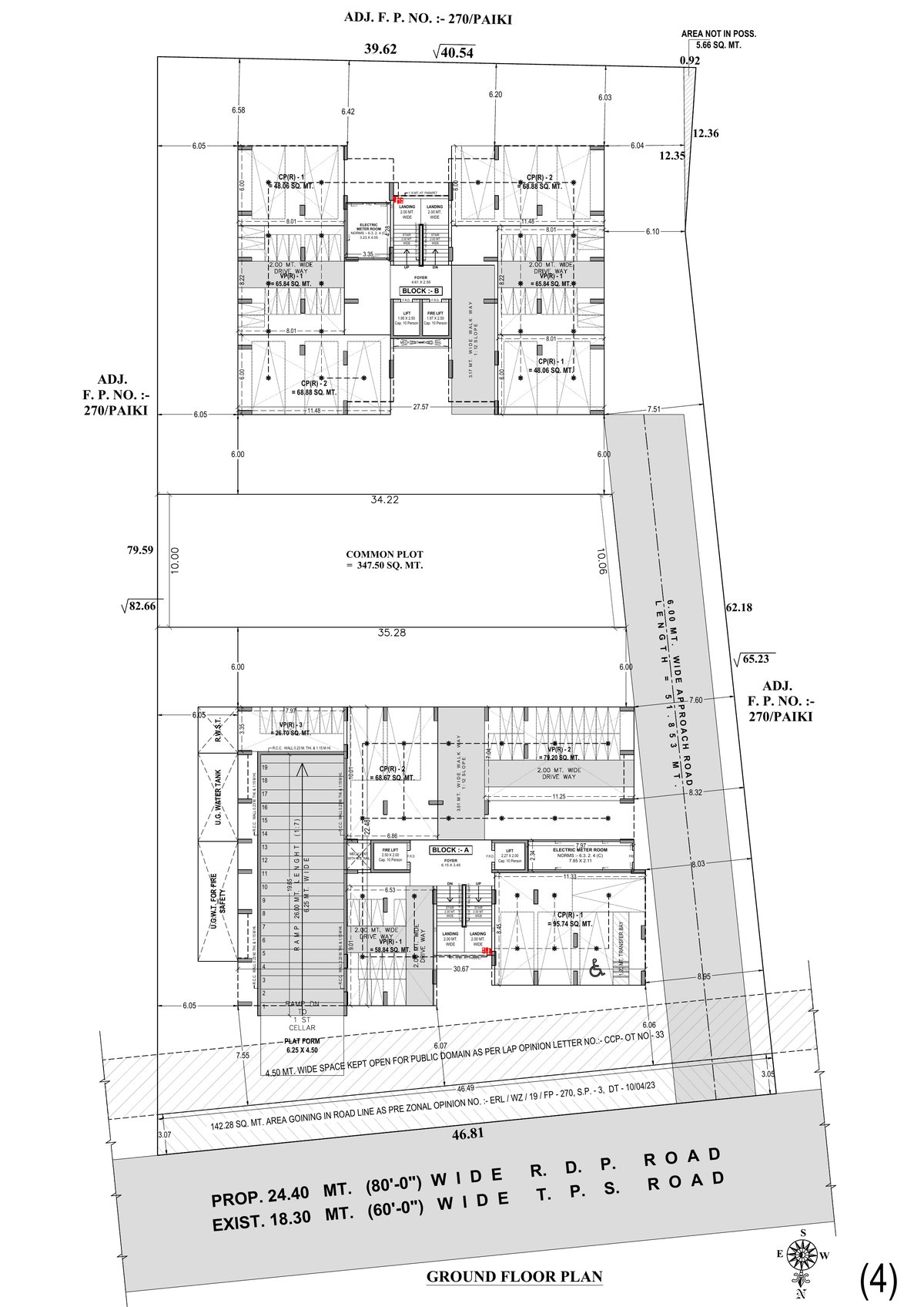
Terrace Skyline is a residential/group housing real estate project developed by Bhoomi Siddhi Developers, strategically located at Sp No.270/b, Stadium Co.op.hou.ltd Memenagar Ahmedabad, Memenagar Ahmedabad, Ahmedabad, 380013. This RERA-registered property (Registration No: PR/GJ/AHMEDABAD/AHMEDABAD CITY/Ahmedabad Municipal Corporation/RAA15577/230725/300430). Residential 3bhkand 4bhk Flats
The project is professionally designed by Jigar Jayant Shah and engineered by Nelson Nanubhai Macwan, ensuring quality construction and adherence to all regulatory standards. For more information about this property, interested buyers can contact Bhoomi Siddhi Developers directly at 9558922276.
















