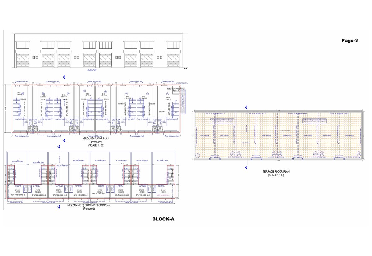
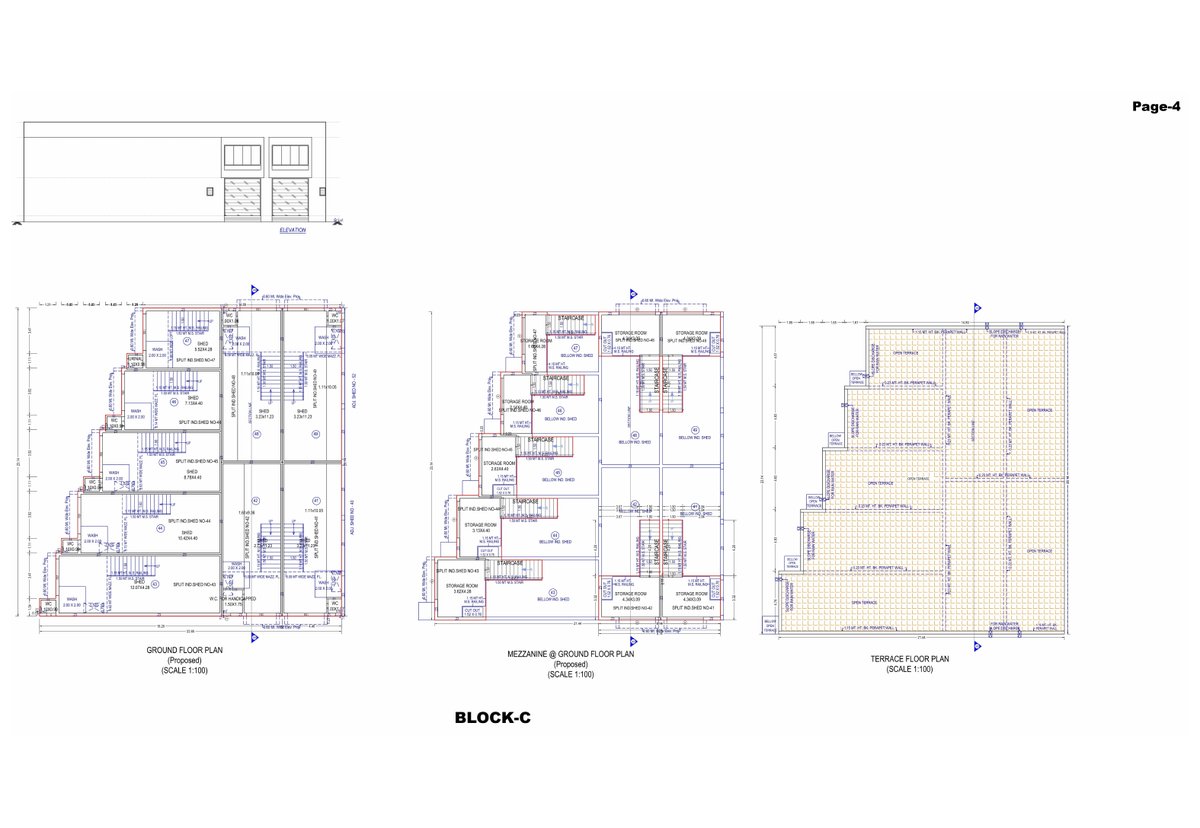
Shubham Industrial Park Phase-2 is a commercial real estate project developed by Sharda Infrastructure, strategically located at Shubham Industrial Park Phase-2, Tps No. 125, Revenue Survey No. : 220/1+220/2 , Final Plot No. : 28/1 , Nr. Shri Ram Estate, Saijpur Gopalpur, Ahmedabad, Ahmedabad, 382405. This RERA-registered property (Registration No: PR/GJ/AHMEDABAD/AHMEDABAD CITY/Ahmedabad Municipal Corporation/CAA15981/131025/300627). Industrial Shed
The project is professionally designed by Pankti Bhadreshbhai Dholakiya and engineered by Jayesh Dineshchandra Desai, ensuring quality construction and adherence to all regulatory standards. For more information about this property, interested buyers can contact Sharda Infrastructure directly at 9825635002.








